Бизнес
Тип жилья: Новостройки
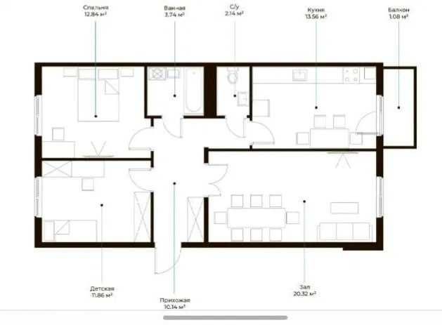
Количество комнат: 3
Общая площадь: 74
Этаж: 4
Этажность дома: 9
Тип строения: Монолитный
Планировка: Раздельная
Санузел: Раздельный
Меблирована: Нет
В квартире есть: Интернет, Телефон, Кабельное ТВ, Балкон
Рядом есть: Больница, поликлиника, Детская площадка, Детский сад, Остановки, Парк, зелёная зона, Развлекательные заведения, Рестораны, кафе, Стоянка, Супермаркет, магазины, Школа
Ремонт: Средний
Комиссионные: Нет
Описание
Men e'lonni sizning talablaringizga muvofiq, rus va lotin yozuvidagi o'zbek tillarida, eng yaxshi tavsiflar bilan, emojilarsiz va stikersiz tayyorlayman.
3-комнатная квартира в ЖК Assalom Havo (Яшнабад)
Состояние: Под ключ (Средний ремонт от застройщика)
Срочная продажа! Продается 3-комнатная квартира с ремонтом в среднем состоянии (от застройщика) в новом монолитном комплексе Assalom Havo от Golden House. Квартира расположена на 4-м этаже 9-этажного дома, имеет раздельную планировку и раздельный санузел. Общая площадь 75 м². Отличный вариант, готовый к заселению, рядом с метро.
Основные характеристики
Жилой комплекс: Assalom Havo
Застройщик: Golden House
Расположение: 4-й этаж 9-этажного монолитного дома.
Общая площадь: 75 м²
Комнаты: 3 (Раздельная планировка).
Ремонт: Средний (от застройщика) (Под ключ).
Санузел: Раздельный.
Тип строения: Монолитный (Новостройка).
Документы: Кадастр имеется.
Цена
Цена: 83 015 у.е.
Ориентир и Контакт
Ориентир: Метро Алмазар, Кадышева рынок, 58-й военный городок.
Контакт: +99877 2533300 (Равшан)
3 xonali kvartira Assalom Havo TJM da (Yashnobod)
Holati: Tayyor (Oʻrtacha taʼmir, quruvchidan)
Shoshilinch sotuv! Golden House quruvchisidan yangi monolit Assalom Havo majmuasidagi oʻrtacha taʼmirli (quruvchidan) 3 xonali kvartira. Kvartira 9 qavatli uyning 4-qavatida joylashgan boʻlib, alohida reja va alohida sanuzelga ega. Umumiy maydoni 75 m². Metro yaqinidagi koʻchib kirishga tayyor ajoyib variant.
Asosiy xususiyatlar
Turar-joy majmuasi: Assalom Havo
Quruvchi: Golden House
Joylashuv: 9 qavatli monolit uyning 4-qavati.
Umumiy maydoni: 75 m²
Xonalar soni: 3 ta (Alohida reja).
Taʼmir: Oʻrtacha (quruvchidan) (Tayyor).
Sanuzel: Alohida.
Bino turi: Monolit (Yangi qurilish).
Hujjatlar: Kadastr mavjud.
Narx
Narx: 83 015 AQSh dollari
Moʻljal va Bogʻlanish
Moʻljal: Olmazor metro bekati, Qodysheva bozori, 58-harbiy shaharcha.
Bogʻlanish: +99877 2533300 (Ravshan)
3-комнатная квартира в ЖК Assalom Havo (Яшнабад)
Состояние: Под ключ (Средний ремонт от застройщика)
Срочная продажа! Продается 3-комнатная квартира с ремонтом в среднем состоянии (от застройщика) в новом монолитном комплексе Assalom Havo от Golden House. Квартира расположена на 4-м этаже 9-этажного дома, имеет раздельную планировку и раздельный санузел. Общая площадь 75 м². Отличный вариант, готовый к заселению, рядом с метро.
Основные характеристики
Жилой комплекс: Assalom Havo
Застройщик: Golden House
Расположение: 4-й этаж 9-этажного монолитного дома.
Общая площадь: 75 м²
Комнаты: 3 (Раздельная планировка).
Ремонт: Средний (от застройщика) (Под ключ).
Санузел: Раздельный.
Тип строения: Монолитный (Новостройка).
Документы: Кадастр имеется.
Цена
Цена: 83 015 у.е.
Ориентир и Контакт
Ориентир: Метро Алмазар, Кадышева рынок, 58-й военный городок.
Контакт: +99877 2533300 (Равшан)
3 xonali kvartira Assalom Havo TJM da (Yashnobod)
Holati: Tayyor (Oʻrtacha taʼmir, quruvchidan)
Shoshilinch sotuv! Golden House quruvchisidan yangi monolit Assalom Havo majmuasidagi oʻrtacha taʼmirli (quruvchidan) 3 xonali kvartira. Kvartira 9 qavatli uyning 4-qavatida joylashgan boʻlib, alohida reja va alohida sanuzelga ega. Umumiy maydoni 75 m². Metro yaqinidagi koʻchib kirishga tayyor ajoyib variant.
Asosiy xususiyatlar
Turar-joy majmuasi: Assalom Havo
Quruvchi: Golden House
Joylashuv: 9 qavatli monolit uyning 4-qavati.
Umumiy maydoni: 75 m²
Xonalar soni: 3 ta (Alohida reja).
Taʼmir: Oʻrtacha (quruvchidan) (Tayyor).
Sanuzel: Alohida.
Bino turi: Monolit (Yangi qurilish).
Hujjatlar: Kadastr mavjud.
Narx
Narx: 83 015 AQSh dollari
Moʻljal va Bogʻlanish
Moʻljal: Olmazor metro bekati, Qodysheva bozori, 58-harbiy shaharcha.
Bogʻlanish: +99877 2533300 (Ravshan)
ID: 62132072
Связаться с продавцом
xxx xxx xxx

