Бизнес
Тип жилья: Вторичный рынок
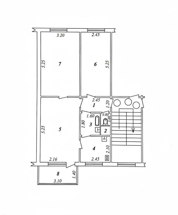
Количество комнат: 3
Общая площадь: 63
Этаж: 4
Этажность дома: 4
Тип строения: Панельный
Планировка: Смежно-раздельная
Санузел: Раздельный
Меблирована: Да
Высота потолков: 3
В квартире есть: Интернет, Телефон, Холодильник, Телевизор, Кондиционер, Кабельное ТВ, Стиральная машина, Кухня, Балкон
Рядом есть: Больница, поликлиника, Школа, Детская площадка, Детский сад, Остановки, Парк, зелёная зона, Развлекательные заведения, Рестораны, кафе, Стоянка, Супермаркет, магазины
Ремонт: Авторский проект
Комиссионные: Нет
Описание
Срочно продаётся шикарная 3-ком квартира
Адрес: г. Ташкент Яшнабадский р-н
Ориентир: Университет Аджу
• Комнат: 3
• Этаж: 4
• Этажность: 4
• Площадь: 63 м2
• Балкон 1.5х3
• Отличная транспортная развязка
Идеальная недвижимость для счастливой жизни по очень низкой цене
Адрес: г. Ташкент Яшнабадский р-н
Ориентир: Университет Аджу
• Комнат: 3
• Этаж: 4
• Этажность: 4
• Площадь: 63 м2
• Балкон 1.5х3
• Отличная транспортная развязка
Идеальная недвижимость для счастливой жизни по очень низкой цене
ID: 62853471
Связаться с продавцом
xxx xxx xxx
Опубликовано Сегодня в 10:44
Срочно своя продаётся 3-ком квартира Яшнабад университет АДЖУ! Ипотека
61 990 у.е.
Местоположение
Ташкент, Яшнабадский район
Ташкентская область
