Бизнес
Тип жилья: Новостройки
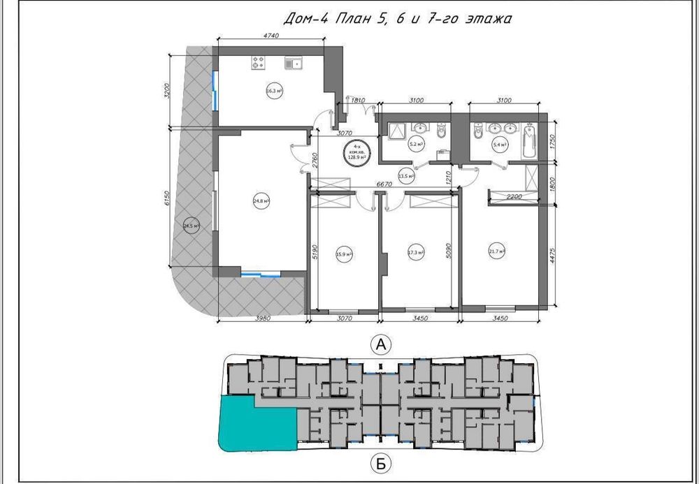
Количество комнат: 4
Общая площадь: 130
Этаж: 6
Этажность дома: 15
Меблирована: Нет
Ремонт: Черновая отделка
Комиссионные: Нет
Описание
Продаётся квартира
ЖК Infinity
Ориентир: Садык Азимова, кафе Эфенди
Комнат: 4
Этаж: 6
Этажность: 15
Общая площадь: 130м2
Состояние: Коробка
Цена: 310.000 y.e
+998935700395
ЖК Infinity
Ориентир: Садык Азимова, кафе Эфенди
Комнат: 4
Этаж: 6
Этажность: 15
Общая площадь: 130м2
Состояние: Коробка
Цена: 310.000 y.e
+998935700395
ID: 62016106
Связаться с продавцом
xxx xxx xxx

