Перейти к основному разделу
Чат
  • O'Z
  • Рус

Уведомления

Ваш профиль

Подать объявление
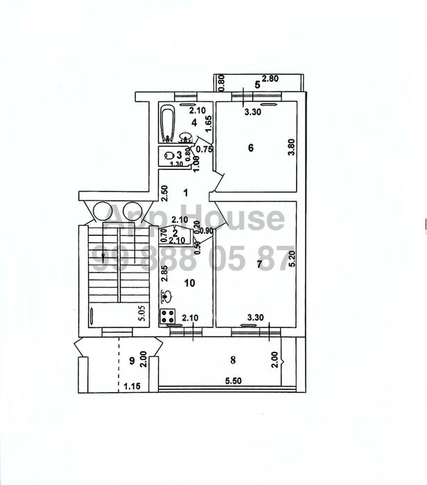
Авиасозлар-2.Кадышева.77-ая серия .Кирпич.
РекламироватьПоднять

Бизнес

Тип жилья: Вторичный рынок

Количество комнат: 2

Общая площадь: 60

Этаж: 4

Этажность дома: 5

Тип строения: Кирпичный

Планировка: Раздельная

Санузел: Раздельный

Меблирована: Нет

Ремонт: Требует ремонта

Комиссионные: Нет

Описание

#Авиасозлар2, Лисунова 1а
#Можно под Ипотеку

#Две - комнаты • 4/5 этаж
Кирпич • 60м² • Балкон 2×6

77-ая #Серия
Комнаты раздельные
Санузел раздельный 
Квартира без ремонта

Цена 63,500$
+998900089438 Любовь
ID: 63706503

Связаться с продавцом

App House

на OLX с июль 2021 г.

Онлайн вчера в 12:21

xxx xxx xxx

Опубликовано 02 марта 2026 г.

Авиасозлар-2.Кадышева.77-ая серия .Кирпич.

63 500 у.е.

Пользователь

Местоположение

Location

Ташкент, Яшнабадский район

Ташкентская область

Бесплатное приложение для твоего телефона