Бизнес
Тип жилья: Новостройки
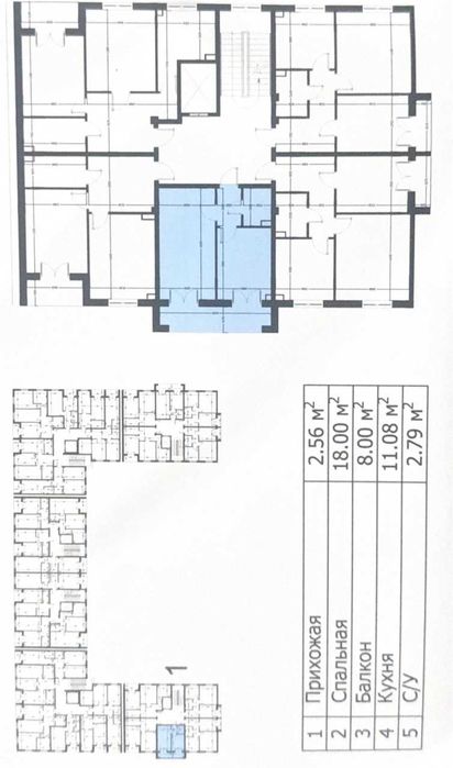
Количество комнат: 1
Общая площадь: 43.10
Этаж: 3
Этажность дома: 10
Тип строения: Монолитный
Планировка: Раздельная
Санузел: Совмещенный
Меблирована: Нет
Высота потолков: 3
Рядом есть: Больница, поликлиника, Школа, Детская площадка, Детский сад, Остановки, Парк, зелёная зона, Развлекательные заведения, Рестораны, кафе, Стоянка, Супермаркет, магазины
Ремонт: Черновая отделка
Комиссионные: Нет
Описание
Жилой комплекс «Depo Residence» расположен в Учтепинском районе на улице Лутфий, 57A. Комплекс находится в 48 минутах от станции метро Алмазар, что обеспечивает относительную доступность общественного транспорта. ЖК относится к классу комфорт и состоит из девятиэтажных домов, построенных с использованием газоблоков. Всего в комплексе насчитывается 510 квартир.
Инфраструктура
Комплекс «Depo Residence» находится в районе с хорошо развитой инфраструктурой. Рядом с ЖК расположены важные объекты и учреждения, обеспечивающие комфортное проживание.
В непосредственной близости от комплекса находится супермаркет Magnum Express. Также недалеко расположен рынок Абу Сахий, который предлагает широкий ассортимент товаров и свежих продуктов. Для семейного отдыха и развлечений поблизости находится развлекательный центр Magic Galaxy. Рядом с ЖК «Depo Residence» расположены школы, что обеспечивает удобный доступ к образовательным учреждениям для семей с детьми. Территория жилого комплекса «Depo Residence» охраняемая. На территории комплекса предусмотрены как открытая, так и закрытая парковка. Наличие охраняемой территории гарантирует безопасность.
Инфраструктура
Комплекс «Depo Residence» находится в районе с хорошо развитой инфраструктурой. Рядом с ЖК расположены важные объекты и учреждения, обеспечивающие комфортное проживание.
В непосредственной близости от комплекса находится супермаркет Magnum Express. Также недалеко расположен рынок Абу Сахий, который предлагает широкий ассортимент товаров и свежих продуктов. Для семейного отдыха и развлечений поблизости находится развлекательный центр Magic Galaxy. Рядом с ЖК «Depo Residence» расположены школы, что обеспечивает удобный доступ к образовательным учреждениям для семей с детьми. Территория жилого комплекса «Depo Residence» охраняемая. На территории комплекса предусмотрены как открытая, так и закрытая парковка. Наличие охраняемой территории гарантирует безопасность.
ID: 63233029
Связаться с продавцом
xxx xxx xxx

