Biznes
Koʻchmas mulk turi: Alohida turgan binolar
Umumiy maydon: 450 m²
Foydali maydoni: 450
Joylashuvi: Bozor
Uchastok: 333
Qavati: 1
Uy qavatliligi: 2
Shiftining balandligi: 4
Taʼmiri: Evrotaʼmir
Binoda bor: Internet, Barcha kommunikatsiya aloqalari
Parkovka: Bor
Vositachilik haqqi: Bor
Tavsif
Продается готовый бизнес! 
год постройки 2022,
Новое 2 этажное здание ХАЙТЕК на 2-й линии.
От рынка Жомий 500 метров, от главной дороги 40 метров,
Отличная локация для дилеров торгующих стройматериалами. фасад 20 метров,
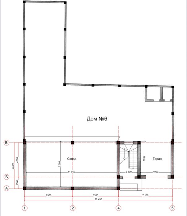
Шоурум офис 120 квадрат,
Склад 330 квадрат, 2 санузла, кондиционер
большая парковка на 6-8 авто удобная для отгрузки большегрузных авто. ,только за наличные!!!
Bino 2022 yil qurilgan
Tayor biznes !
Jomiy bozoridan 500metr yaqinida
120 kv.m shourum ofis,
330 kv.m sklad,
5-6ta avtoga turargoh
Katta yuklani tushirishga va ortishga qulai. Fura qoishga joi bor
Goyib ota qabristoni tugrisidigi kuchada. Тулов накд пулга 909509000
год постройки 2022,
Новое 2 этажное здание ХАЙТЕК на 2-й линии.
От рынка Жомий 500 метров, от главной дороги 40 метров,
Отличная локация для дилеров торгующих стройматериалами. фасад 20 метров,
Шоурум офис 120 квадрат,
Склад 330 квадрат, 2 санузла, кондиционер
большая парковка на 6-8 авто удобная для отгрузки большегрузных авто. ,только за наличные!!!
Bino 2022 yil qurilgan
Tayor biznes !
Jomiy bozoridan 500metr yaqinida
120 kv.m shourum ofis,
330 kv.m sklad,
5-6ta avtoga turargoh
Katta yuklani tushirishga va ortishga qulai. Fura qoishga joi bor
Goyib ota qabristoni tugrisidigi kuchada. Тулов накд пулга 909509000
ID: 55218133
Sotuvchiga murojaat qilish
xxx xxx xxx
Joylashtirildi 23/10/2025
Жомий готовое здание. Строй рынок Жамий срочно!!!
300 000 у.е.
Joylashuv
Toshkent, Uchtepa tumani
Toshkent viloyati