Biznes
Turarjoy turi: Yangi qurilgan uylar
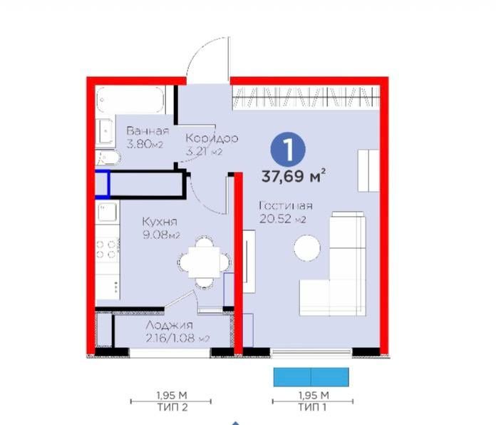
Xonalar soni: 1
Umumiy maydon: 37
Qavati: 15
Uy qavatliligi: 16
Mebelli: Yoʻq
Yaqinida joylashgan: Bolalar maydonchasi, Bolalar bogʻchasi, Park, yashil zona, Koʻngilochar muassasalar, turargoh, Supermarket, doʻkonlar
Vositachilik haqqi: Yo’q
Tavsif
Продается квартира ЖК Botanika Saroyi
Район: Мирзо Улугбек
Ориентир: Высоковольтный
Комнат: 1
Этаж: 15
Этажность: 16
Площадь: 37,69 м²
Санузел: совмещенный
Состояние: пред чистовая
Примечание: Кадастр Имеется
Цена: 55 000у.е.
+998 93 888 60 99
Район: Мирзо Улугбек
Ориентир: Высоковольтный
Комнат: 1
Этаж: 15
Этажность: 16
Площадь: 37,69 м²
Санузел: совмещенный
Состояние: пред чистовая
Примечание: Кадастр Имеется
Цена: 55 000у.е.
+998 93 888 60 99
ID: 63469420
Sotuvchiga murojaat qilish
xxx xxx xxx
