Biznes
Turarjoy turi: Ikkilamchi bozor
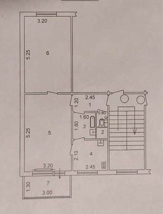
Xonalar soni: 2
Umumiy maydon: 50
Qavati: 1
Uy qavatliligi: 4
Qurilish turi: Panelli
Rejasi: Aralash
Uy qurilgan/topshiriladigan yil: 1980 - 1989
Sanuzel: Alohida
Mebelli: Yoʻq
Kvartirada bor: Televizor, Internet, Telefon, Oshxona, Muzlatkich, Balkon
Yaqinida joylashgan: Koʻngilochar muassasalar, Bekatlar, Maktab, Supermarket, doʻkonlar, Restoran, kafelar, Bolalar maydonchasi, Park, yashil zona, Bolalar bogʻchasi, Kasalxona, poliklinika, turargoh
Taʼmiri: Oʻrtacha
Vositachilik haqqi: Yo’q
Tavsif
Продаётся двух комнатная квартира!!!
Яшнабадский район Панельный массив 2/1/4 ориентир Барака маркет
Квадратура: 50м2
Комнат: 2
Этаж: 1
Этажность: 4
Дополнительно: удобная локация, всё по шаговой доступности, не торец, зеркальная планировка.
Рядом есть: школа, детская площадка, детский сад, супермаркет, базарчик.
Телефон для связи: +998901209555
Яшнабадский район Панельный массив 2/1/4 ориентир Барака маркет
Квадратура: 50м2
Комнат: 2
Этаж: 1
Этажность: 4
Дополнительно: удобная локация, всё по шаговой доступности, не торец, зеркальная планировка.
Рядом есть: школа, детская площадка, детский сад, супермаркет, базарчик.
Телефон для связи: +998901209555
ID: 64139862
Sotuvchiga murojaat qilish
xxx xxx xxx
