Biznes
Koʻchmas mulk turi: Ofislar, Do’konlar/butiklar
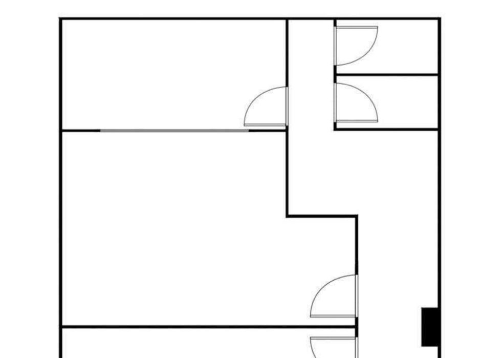
Umumiy maydon: 88 m²
Joylashuvi: Turar joy
Qavati: 2
Uy qavatliligi: 9
Shiftining balandligi: 3
Taʼmiri: Oʻrtacha
Parkovka: Bor
Vositachilik haqqi: Bor
Tavsif
Адрес-Яшнабадский район, ул.Паркент, ориентир мост тапоич
Комнат-3
Площадь-88кв.м.
Этаж-2
Этажность-9
Цена:800у.е.
сдается в аренду нежилое помещение, 2 этаж жилого дома, отличный вариант под офис, шоурум, комнаты можно сделать open space, сан узел есть, двухконтурный котел, теплый пол
Услуги риэлтора 50% с 1 месяца.
Комнат-3
Площадь-88кв.м.
Этаж-2
Этажность-9
Цена:800у.е.
сдается в аренду нежилое помещение, 2 этаж жилого дома, отличный вариант под офис, шоурум, комнаты можно сделать open space, сан узел есть, двухконтурный котел, теплый пол
Услуги риэлтора 50% с 1 месяца.
ID: 62319743
Sotuvchiga murojaat qilish
xxx xxx xxx
