Jismoniy shaxs
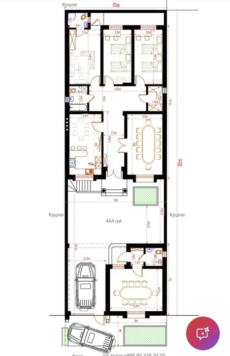
Xonalar soni: 5
Umumiy maydon: 200 m²
Joylashuvi: Shaharda
Uy qavatliligi: 1
Shiftining balandligi: 3.30
Mebelli: Yoʻq
Uchastka maydoni: 300
Uy turi: Uy
Qurilish turi: Gʻishtli
Suv: Uyda, Markazlashgan suv taʼminoti, Oʻtkazish imkoniyati, Uchastkada quduq
Elektr taʼminoti: Bor
Gaz: Magistral
Sanuzel: 2 va undan koʻp sanuzel
Uy qurilgan/topshiriladigan yil: 2025
Uyda / Uchastkada bor: Internet, Ertoʻla, omborcha, Telefon, Garaj, Kanalizatsiya, Tomorqa
Yaqinida joylashgan: Kasalxona, poliklinika, Maktab, Bolalar maydonchasi, Bolalar bogʻchasi, Bekatlar, Restoran, kafelar, turargoh, Supermarket, doʻkonlar
Vositachilik haqqi: Yo’q
Tavsif
Узимни уйимни сотаман 5 хонали, Тошкент шахар, Бектемир тумани, Забардаст махаллада, Боги Эрам 3 куча
Янги Тошкент туманига чегарадош жой, Куйлик бозордан 3 км узокликда, Хавоси жуда тоза жойлар.
Бектемирни энг зор махаллаларидан, кучалари кенг ва тогри йуллар, янги махалла 10 йилча булган, келажак 10 йилларда хозирги Тошкент ва Янги Тошкентни уртасида колиб кетади.
Уйни тепасини плита билан ёпганман, бемалол келажакда 2-этажни кутарса булади.
~ 3 сотих
~ 5 хона, кухня ва кухняни таги подвал
~ Кадастр хужжатлари тайор.
Уйлар умумий 65 -70 % тайор.
100% Пишган гиштдан кутарилган.
электрика симлари 100% битган, канализация трубалари 100% битган,
Akfa ойналари ва дарвоза куйилган, факат уйни ичини ремонт килиб кирвоса хам булади.
3 сотихдан 2 та бир хил ёнма ён янги уйлар курилган 6 сотих жойга.
Центргача, Амир Темур хиёбонигача (12 км) 20 минутлик йул.
Жуда хам удобный планировка килинган, хоналар размерлари катта ва кенг курилган, факат сифатли курилиш махсулотлардан фойдаланилган, насиб килса 100 йиллаб хизмат килади, хамма курилиш жарайонни видеога олганман, телеграмга ташлаб хам бераман.
Свой # Своя # Свою # Янги Тошкент # Янги Узбекистон# Яшнабад
Янги Тошкент туманига чегарадош жой, Куйлик бозордан 3 км узокликда, Хавоси жуда тоза жойлар.
Бектемирни энг зор махаллаларидан, кучалари кенг ва тогри йуллар, янги махалла 10 йилча булган, келажак 10 йилларда хозирги Тошкент ва Янги Тошкентни уртасида колиб кетади.
Уйни тепасини плита билан ёпганман, бемалол келажакда 2-этажни кутарса булади.
~ 3 сотих
~ 5 хона, кухня ва кухняни таги подвал
~ Кадастр хужжатлари тайор.
Уйлар умумий 65 -70 % тайор.
100% Пишган гиштдан кутарилган.
электрика симлари 100% битган, канализация трубалари 100% битган,
Akfa ойналари ва дарвоза куйилган, факат уйни ичини ремонт килиб кирвоса хам булади.
3 сотихдан 2 та бир хил ёнма ён янги уйлар курилган 6 сотих жойга.
Центргача, Амир Темур хиёбонигача (12 км) 20 минутлик йул.
Жуда хам удобный планировка килинган, хоналар размерлари катта ва кенг курилган, факат сифатли курилиш махсулотлардан фойдаланилган, насиб килса 100 йиллаб хизмат килади, хамма курилиш жарайонни видеога олганман, телеграмга ташлаб хам бераман.
Свой # Своя # Свою # Янги Тошкент # Янги Узбекистон# Яшнабад
ID: 61883420
Sotuvchiga murojaat qilish
xxx xxx xxx
Joylashtirildi 19/10/2025
Свой дом, 5 комнат, Боги Эрам
129 000 у.е.
Kelishilgan
Foydalanuvchi
Joylashuv
Toshkent, Bektemir tumani
Toshkent viloyati