Asosiy kontentga oʻtish
Chat
  • O'Z
  • РУ

Bildirishnoma

E‘lon berish
Срочно продам 3х комнатную 100м2 Новостройка Кукча
Срочно продам 3х комнатную 100м2 Новостройка Кукча
Срочно продам 3х комнатную 100м2 Новостройка Кукча
Срочно продам 3х комнатную 100м2 Новостройка Кукча
Срочно продам 3х комнатную 100м2 Новостройка Кукча
Срочно продам 3х комнатную 100м2 Новостройка Кукча
Срочно продам 3х комнатную 100м2 Новостройка Кукча
Reklama qilishKoʻtarish

Biznes

Turarjoy turi: Yangi qurilgan uylar

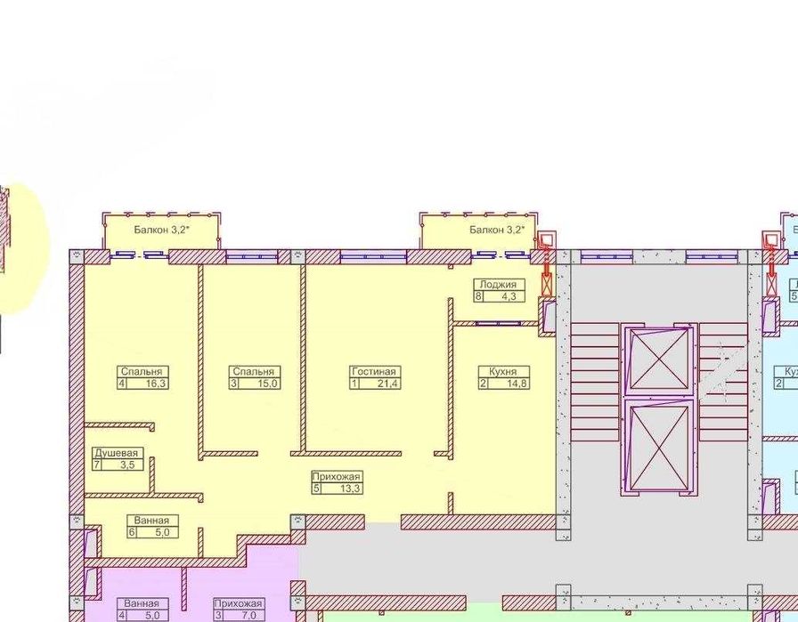
Xonalar soni: 3

Umumiy maydon: 100

Qavati: 9

Uy qavatliligi: 10

Qurilish turi: Gʻishtli

Rejasi: Alohida ajratilgan

Sanuzel: Alohida

Mebelli: Yoʻq

Taʼmiri: Qora suvoq

Vositachilik haqqi: Yo’q

Tavsif

Продаётся Квартира / Новостройка ЖК “Кукча Дарвоза ”

Адрес: Ул Кукча Дарвоза , Шайхантахурский р-н
Ориентир : 1 Горбольница

Комнат -3
Этаж: 9
Этажность - 10
Площадь - 100 м²
Кирпич.
Состояние: черновая отделка .

#Цена : 1 000 уе за 1 кв.м
ID: 62447387

Sotuvchiga murojaat qilish

Facebook connected icon

Риэлтор

OLXda yanvar, 2011 beri

Oxirgi marta bugun 13:21 da bo'lgan

xxx xxx xxx

Joylashtirildi 29/11/2025

Срочно продам 3х комнатную 100м2 Новостройка Кукча

1 000 у.е.

Foydalanuvchi

Joylashuv

Location

Toshkent, Shayxontohur tumani

Toshkent viloyati

Телефонингиз учун бепул илова