Biznes
Turarjoy turi: Yangi qurilgan uylar
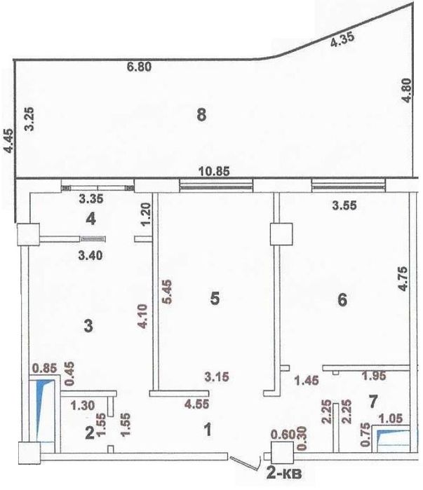
Xonalar soni: 3
Umumiy maydon: 78
Qavati: 1
Uy qavatliligi: 10
Qurilish turi: Gʻishtli
Mebelli: Yoʻq
Vositachilik haqqi: Bor
Tavsif
Продается 3х комнатная квартира в ЖК “Кох Ота”
Количество комнат - 3.
Площадь - 78 кв.м.
Этаж - 1.
Этажность - 10.
Состояние - коробка.
Имеет свою терассу.
Закрытый, охраняемый двор с подземной парковкой.
Кадастр имеется.
Дом заселен.
В цену входит одно надземное парковочное место
Цена снижена : 125.000$ мин торг
Количество комнат - 3.
Площадь - 78 кв.м.
Этаж - 1.
Этажность - 10.
Состояние - коробка.
Имеет свою терассу.
Закрытый, охраняемый двор с подземной парковкой.
Кадастр имеется.
Дом заселен.
В цену входит одно надземное парковочное место
Цена снижена : 125.000$ мин торг
ID: 63856646
Sotuvchiga murojaat qilish
xxx xxx xxx
