Biznes
Turarjoy turi: Ikkilamchi bozor
Xonalar soni: 1
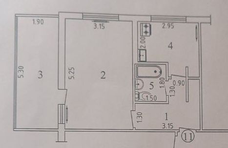
Umumiy maydon: 43
Qavati: 4
Uy qavatliligi: 4
Qurilish turi: Monolitli
Rejasi: Alohida ajratilgan
Uy qurilgan/topshiriladigan yil: 1980 - 1989
Sanuzel: Aralash
Mebelli: Yoʻq
Kvartirada bor: Internet, Telefon, Kabelli TV, Oshxona, Balkon
Yaqinida joylashgan: Kasalxona, poliklinika, Maktab, Bolalar maydonchasi, Bolalar bogʻchasi, Bekatlar, Park, yashil zona, Koʻngilochar muassasalar, Restoran, kafelar, turargoh, Supermarket, doʻkonlar
Taʼmiri: Oʻrtacha
Vositachilik haqqi: Yo’q
Tavsif
Продаётся квартира Улучшенная планировка
Место отличное Феруза Экобазар 1в2/4/4
Квадрат 43 Балкон 2х6
Ипотека рассматривается
Тел: 90 120 89 98 Сардор
Телеграм канал: NewTashkent01
Место отличное Феруза Экобазар 1в2/4/4
Квадрат 43 Балкон 2х6
Ипотека рассматривается
Тел: 90 120 89 98 Сардор
Телеграм канал: NewTashkent01
ID: 61933853
Sotuvchiga murojaat qilish
xxx xxx xxx

