Biznes
Turarjoy turi: Yangi qurilgan uylar
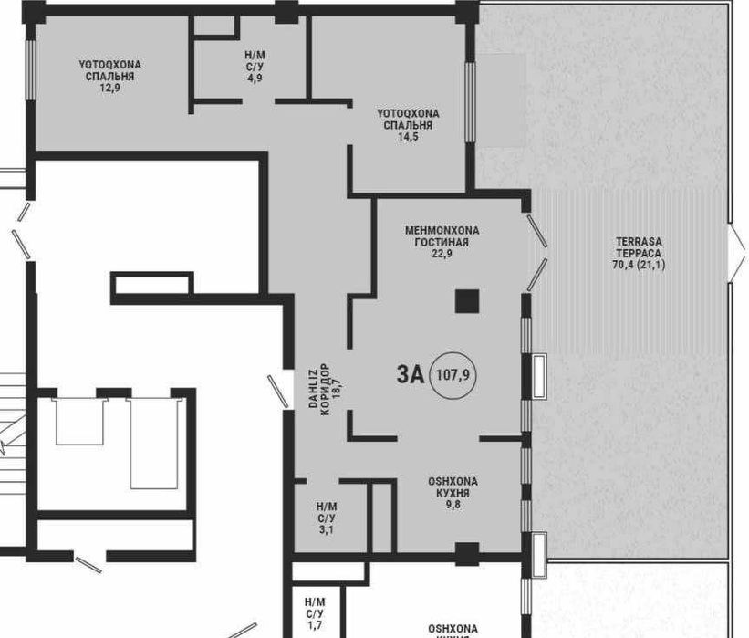
Xonalar soni: 3
Umumiy maydon: 106
Qavati: 1
Uy qavatliligi: 12
Qurilish turi: Monolitli
Rejasi: Alohida ajratilgan
Sanuzel: 2 va undan koʻp sanuzel
Mebelli: Yoʻq
Kvartirada bor: Internet, Telefon, Kabelli TV, Oshxona, Balkon
Yaqinida joylashgan: Kasalxona, poliklinika, Bolalar maydonchasi, Bolalar bogʻchasi, Bekatlar, Park, yashil zona, Koʻngilochar muassasalar, Restoran, kafelar, turargoh, Supermarket, doʻkonlar, Maktab
Taʼmiri: Qora suvoq
Vositachilik haqqi: Yo’q
Tavsif
Жилой Комплекс Koh-Ota
Застройщик: Bazis-T
Кадастр: есть
Комнаты: 3
Этаж: 1 из 12
Площадь: 106 м² + терраса
Ремонт: коробка
Планировка: раздельная
Санузлы: 2
Тип строения: монолит
Дополнительная информация: сквозная квартира
Ориентир: Мечеть Koh Ota, ТЦ Ривьера
Продается просторная трехкомнатная квартира в премиальном жилом комплексе Koh-Ota в центре района Себзар. Квартира в состоянии коробки, сквозная, что обеспечивает естественное освещение со всех сторон. Раздельная планировка и два санузла делают проживание комфортным. Отличный вариант для семьи или инвестиций.
Цена: 169 999 у.е. (старт)
Телефон: +998 77 003 29 22
O‘zbekcha вариант
#shayxan #bezrem #sebzar #premium #markaz #3xona
Koh-Ota Turar-joy Majmuasi
Quruvchi: Bazis-T
Kadastr: bor
Xonalar: 3
Qavat: 1 / 12
Maydon: 106 m² + terassa
Ta’mir: quti
Reja: alohida
Sanuzel: 2 ta
Uy turi: monolit
Qo‘shimcha ma’lumot: kvartira skvoznaya (ikki tomonlama)
Mo‘ljal: Koh Ota masjidi, TС Riviera
Sebzar markazidagi premium darajadagi Koh-Ota majmuasida uch xonali kvartira sotiladi. Kvartira quti holatida, ikki tomonlama bo‘lib, tabiiy yorug‘lik bilan ta’minlangan. Alohida reja va ikki sanuzel oilaviy yashashni qulay qiladi. Oilaviy yashash yoki investitsiya uchun mos.
Narx: 169 999 y.e. (start)
Telefon: +998 77 003 29 22
Застройщик: Bazis-T
Кадастр: есть
Комнаты: 3
Этаж: 1 из 12
Площадь: 106 м² + терраса
Ремонт: коробка
Планировка: раздельная
Санузлы: 2
Тип строения: монолит
Дополнительная информация: сквозная квартира
Ориентир: Мечеть Koh Ota, ТЦ Ривьера
Продается просторная трехкомнатная квартира в премиальном жилом комплексе Koh-Ota в центре района Себзар. Квартира в состоянии коробки, сквозная, что обеспечивает естественное освещение со всех сторон. Раздельная планировка и два санузла делают проживание комфортным. Отличный вариант для семьи или инвестиций.
Цена: 169 999 у.е. (старт)
Телефон: +998 77 003 29 22
O‘zbekcha вариант
#shayxan #bezrem #sebzar #premium #markaz #3xona
Koh-Ota Turar-joy Majmuasi
Quruvchi: Bazis-T
Kadastr: bor
Xonalar: 3
Qavat: 1 / 12
Maydon: 106 m² + terassa
Ta’mir: quti
Reja: alohida
Sanuzel: 2 ta
Uy turi: monolit
Qo‘shimcha ma’lumot: kvartira skvoznaya (ikki tomonlama)
Mo‘ljal: Koh Ota masjidi, TС Riviera
Sebzar markazidagi premium darajadagi Koh-Ota majmuasida uch xonali kvartira sotiladi. Kvartira quti holatida, ikki tomonlama bo‘lib, tabiiy yorug‘lik bilan ta’minlangan. Alohida reja va ikki sanuzel oilaviy yashashni qulay qiladi. Oilaviy yashash yoki investitsiya uchun mos.
Narx: 169 999 y.e. (start)
Telefon: +998 77 003 29 22
ID: 62320520
Sotuvchiga murojaat qilish
xxx xxx xxx

