Asosiy kontentga oʻtish
Chat
  • O'Z
  • РУ

Bildirishnoma

E‘lon berish
Сотувда 1 хонали квартира, Куйлюк 5
Сотувда 1 хонали квартира, Куйлюк 5
Сотувда 1 хонали квартира, Куйлюк 5
Сотувда 1 хонали квартира, Куйлюк 5
Сотувда 1 хонали квартира, Куйлюк 5
Reklama qilishKoʻtarish

Biznes

Turarjoy turi: Ikkilamchi bozor

Xonalar soni: 1

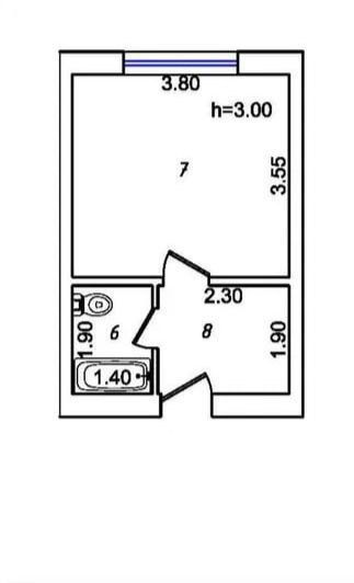
Yashash maydoni: 21 m²

Umumiy maydon: 21

Qavati: 4

Uy qavatliligi: 4

Qurilish turi: Gʻishtli

Rejasi: Kichik oilalar uchun

Sanuzel: Aralash

Mebelli: Yoʻq

Yaqinida joylashgan: Kasalxona, poliklinika, Maktab, Bolalar maydonchasi, Bolalar bogʻchasi, Bekatlar, Park, yashil zona, Koʻngilochar muassasalar, Restoran, kafelar, turargoh, Supermarket, doʻkonlar

Vositachilik haqqi: Yo’q

Tavsif

Сотилади 1 хонадонли квартира Сергели, Қуйлюк-5 массивида

• Кирпичли уй
• Олдинги общежитие

Майдон: 21 м² – кенг
Қават: 1/4/4
Индивидуал кадастр мавжуд
Ҳолати: ўртача таъмир, тоза
Санузел ва ошхона ўз хонасида

Жойлашув: метро, мактаб, боғчалар ва бошқа қулайликлар яқин

Нархи: $26 000
Тўлов: нақд

Алоқа учун: Сабрина
+998938887007
+998712519279

199/136
ID: 61680451

Sotuvchiga murojaat qilish

Evgeniy House

OLXda avgust, 2022 beri

So'nggi faollik 09-oktabr, 2025

xxx xxx xxx

Joylashtirildi 08/10/2025

Сотувда 1 хонали квартира, Куйлюк 5

26 000 у.е.

Foydalanuvchi

Joylashuv

Location

Toshkent, Sirg‘ali tumani

Toshkent viloyati

Телефонингиз учун бепул илова