Asosiy kontentga oʻtish
Chat
  • O'Z
  • РУ

Bildirishnoma

E‘lon berish
Сдаётся нежилое помещение
Сдаётся нежилое помещение
Сдаётся нежилое помещение
Reklama qilishKoʻtarish

Biznes

Koʻchmas mulk turi: Salonlar, Do’konlar/butiklar, Ofislar, Restoranlar/kafelar/barlar

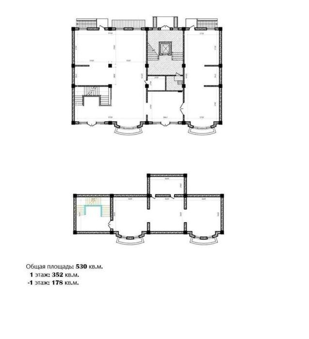
Umumiy maydon: 530 m²

Qavati: 1

Taʼmiri: Oʻrtacha

Binoda bor: Tsokol-pastki qavat

Parkovka: Bor

Vositachilik haqqi: Bor

Tavsif

СДАЁТСЯ НЕЖИЛОЕ ПОМЕЩЕНИЕ

1я линия

Район: Мирабадский
Ориентир: ул. Тараса Шевченко
Площадь: 352 м2 + 178 м2 подвал
Этаж: 1 + подвал
Фасад: 25 метров
Планировка: open space
Состояние: Срендний ремонт
Парковка: Есть

Цена: 16.000 y.e. Торг

+998919840550
+998908732323
ID: 63096729

Sotuvchiga murojaat qilish

Алибек

OLXda may, 2023 beri

Oxirgi marta kecha 20:24 da bo'lgan

xxx xxx xxx

Joylashtirildi 18/01/2026

Сдаётся нежилое помещение

16 000 у.е.

Foydalanuvchi

Joylashuv

Location

Toshkent, Mirobod tumani

Toshkent viloyati

Телефонингиз учун бепул илова