Asosiy kontentga oʻtish
Chat
  • O'Z
  • РУ

Bildirishnoma

E‘lon berish
Сдаётся и Продаётся офис в бизнес центре
Сдаётся и Продаётся офис в бизнес центре
Сдаётся и Продаётся офис в бизнес центре
Сдаётся и Продаётся офис в бизнес центре
Сдаётся и Продаётся офис в бизнес центре
Reklama qilishKoʻtarish

Biznes

Koʻchmas mulk turi: Do’konlar/butiklar, Salonlar, Restoranlar/kafelar/barlar, Ofislar

Umumiy maydon: 10 000 m²

Uy qavatliligi: 11

Binoda bor: Signalizatsiya, Yong’in signalizatsiyasi, Video kuzatuv

Parkovka: Bor

Vositachilik haqqi: Yo’q

Tavsif

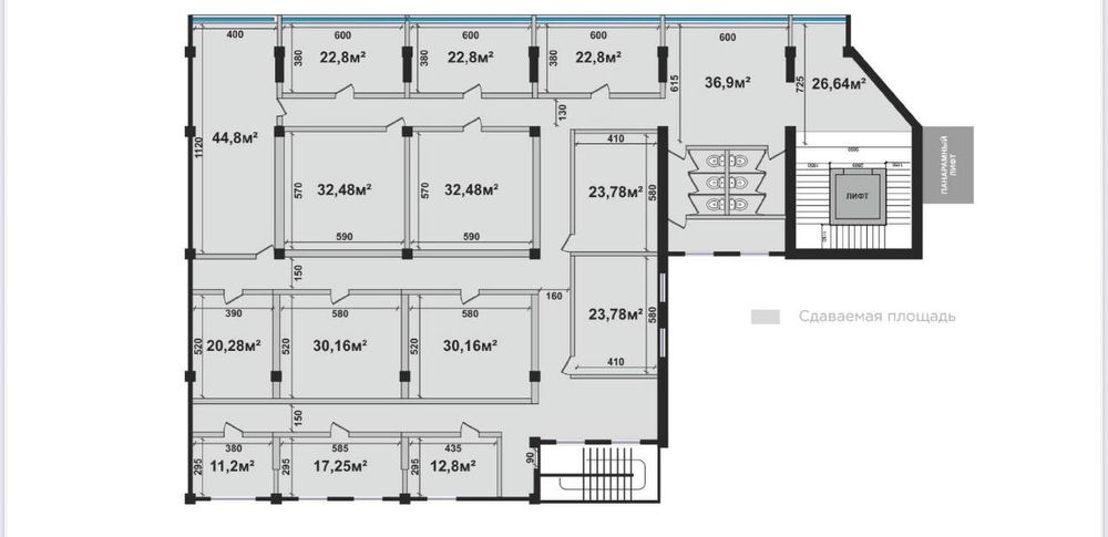
Предлагаются современные офисные помещения в новом бизнес-центре. Возможна аренда с ремонтом или без ремонта — на ваш выбор.

Преимущества:
• Развитая инфраструктура района
• Удобная парковка — мест хватает всем
• Метро в шаговой доступности
• Планировки: open space или кабинеты

Статус этажей:
1–3 этажи уже сданы, доступны помещения с 4 этажа и выше.

Стоимость аренды:
• Без ремонта — 250000 сум /м²
• С ремонтом — 312500 сум /м² цены за аренду
ID: 62080458

Sotuvchiga murojaat qilish

Shaxzod

OLXda mart, 2025 beri

So'nggi faollik 01-noyabr, 2025

xxx xxx xxx

Joylashtirildi 01/11/2025

Сдаётся и Продаётся офис в бизнес центре

312 500 so’m

Foydalanuvchi

Joylashuv

Location

Mirobod

Toshkent viloyati

Телефонингиз учун бепул илова