Biznes
Turarjoy turi: Yangi qurilgan uylar
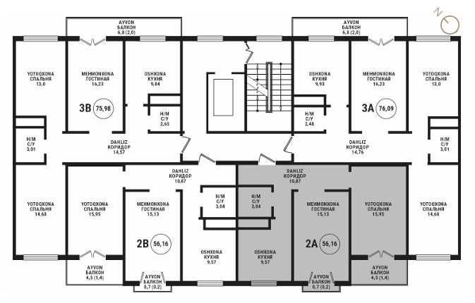
Xonalar soni: 2
Umumiy maydon: 56.16
Qavati: 7
Uy qavatliligi: 9
Qurilish turi: Monolitli
Rejasi: Alohida ajratilgan
Sanuzel: Aralash
Mebelli: Yoʻq
Kvartirada bor: Internet, Telefon, Kabelli TV, Oshxona, Balkon
Yaqinida joylashgan: Kasalxona, poliklinika, Maktab, Bolalar maydonchasi, Bolalar bogʻchasi, Bekatlar, Park, yashil zona, Koʻngilochar muassasalar, Restoran, kafelar, turargoh, Supermarket, doʻkonlar
Taʼmiri: Qora suvoq
Vositachilik haqqi: Yo’q
Tavsif
Koh-Ota
Застройщик: Bazis-T
Продаётся 2-комнатная квартира в новом доме в центре города — район Себзар, рядом с мечетью Koh Ota. Квартира в состоянии «коробка», идеально подойдёт для реализации индивидуального дизайнерского проекта. Отличное расположение, развитая инфраструктура и удобная транспортная доступность.
Кадастр: есть
Этаж: 7 из 9
Площадь: 56.16 м²
Состояние: коробка
Ориентир: мечеть Koh Ota, Себзар
Цена: 76 999 $ (СРОЧНО)
Телефон: +998 77 003 29 22
#Shayxontohur #ta’mirsiz #markaz #Sebzar #2xona
Koh-Ota
Quruvchi: Bazis-T
Shayxontohur tumanida, Sebzar hududida joylashgan yangi uyda 2 xonali kvartira sotiladi. Kvartira «korobka» holatda, o‘z dizayn loyihangizni amalga oshirish uchun qulay. Hudud markazda, infratuzilma to‘liq rivojlangan.
Kadastr: bor
Qavat: 7 / 9
Maydon: 56.16 m²
Holat: korobka
Mo‘ljal: Koh Ota masjidi, Sebzar
Narx: 76 999 $ (shoshilinch)
Telefon: +998 77 003 29 22
Застройщик: Bazis-T
Продаётся 2-комнатная квартира в новом доме в центре города — район Себзар, рядом с мечетью Koh Ota. Квартира в состоянии «коробка», идеально подойдёт для реализации индивидуального дизайнерского проекта. Отличное расположение, развитая инфраструктура и удобная транспортная доступность.
Кадастр: есть
Этаж: 7 из 9
Площадь: 56.16 м²
Состояние: коробка
Ориентир: мечеть Koh Ota, Себзар
Цена: 76 999 $ (СРОЧНО)
Телефон: +998 77 003 29 22
#Shayxontohur #ta’mirsiz #markaz #Sebzar #2xona
Koh-Ota
Quruvchi: Bazis-T
Shayxontohur tumanida, Sebzar hududida joylashgan yangi uyda 2 xonali kvartira sotiladi. Kvartira «korobka» holatda, o‘z dizayn loyihangizni amalga oshirish uchun qulay. Hudud markazda, infratuzilma to‘liq rivojlangan.
Kadastr: bor
Qavat: 7 / 9
Maydon: 56.16 m²
Holat: korobka
Mo‘ljal: Koh Ota masjidi, Sebzar
Narx: 76 999 $ (shoshilinch)
Telefon: +998 77 003 29 22
ID: 62016681
Sotuvchiga murojaat qilish
xxx xxx xxx

