Jismoniy shaxs
Turi: Boshqa
Tavsif
Проектирование грузоподъемного оборудования любой сложности:
- кран-балки г/п до 20 тонн
- краны мостовые опорные двухбалочные г/п до 500 тонн
- краны подвесные одно, двух и многопролетные г/п до 20 тонн
- краны консольные г/п до 40 тонн
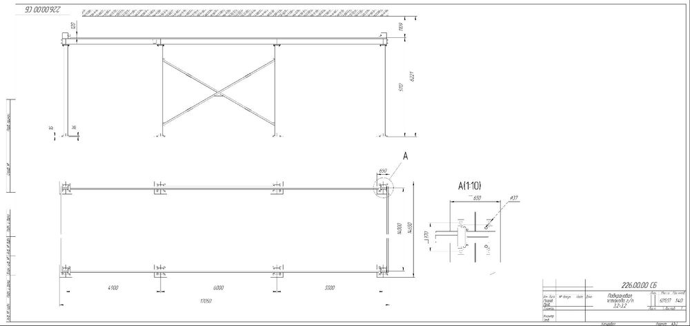
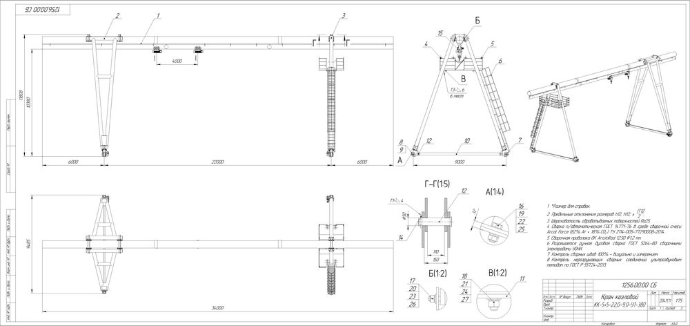
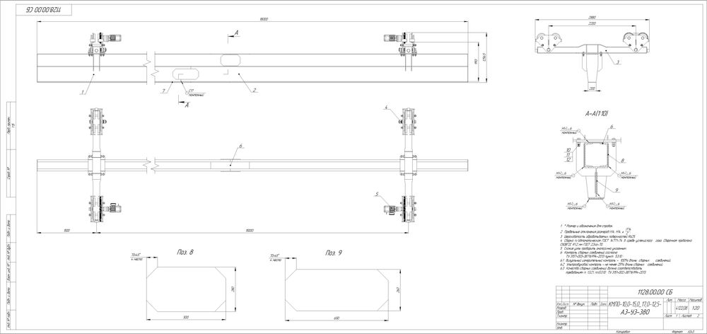
- краны козловые однобалочные и двухбалочные г/п до 500 тонн
- краны полукозловые однобалочные и двухбалочные г/п до 500 тонн
Предоставляем по договоренности:
- 3Д модель крана
- чертежи в форматах pdf, dwg и др.
- чертежи сборочные, деталировки, спецификации
Мы предлагаем:
1. Составление Технического Задания и помощь в проведении конкурентного анализа
2. Разработка конструкторской документации на изготовление оборудование
3. Разработка Технических Условий и Обоснования Безопасности для проведения сертификации продукции
4. Помощь в проведении сертификации продукции
5. Разработка Технической Документации на кран (Технический паспорт, Руководство по эксплуатации, Инструкция по монтажу)
6. Помощь в поиске подрядчиков на поставку комплектующих и услуг
7. Технический надзор и сопровождение на всех стадиях выполнения работ
8. Предоставление технологии сборки мостов крана с чертежами на оснастку (при необходимости)
Большой опыт в проектировании грузоподъемного оборудования, более 2000 реализованных проектов!
- кран-балки г/п до 20 тонн
- краны мостовые опорные двухбалочные г/п до 500 тонн
- краны подвесные одно, двух и многопролетные г/п до 20 тонн
- краны консольные г/п до 40 тонн
- краны козловые однобалочные и двухбалочные г/п до 500 тонн
- краны полукозловые однобалочные и двухбалочные г/п до 500 тонн
Предоставляем по договоренности:
- 3Д модель крана
- чертежи в форматах pdf, dwg и др.
- чертежи сборочные, деталировки, спецификации
Мы предлагаем:
1. Составление Технического Задания и помощь в проведении конкурентного анализа
2. Разработка конструкторской документации на изготовление оборудование
3. Разработка Технических Условий и Обоснования Безопасности для проведения сертификации продукции
4. Помощь в проведении сертификации продукции
5. Разработка Технической Документации на кран (Технический паспорт, Руководство по эксплуатации, Инструкция по монтажу)
6. Помощь в поиске подрядчиков на поставку комплектующих и услуг
7. Технический надзор и сопровождение на всех стадиях выполнения работ
8. Предоставление технологии сборки мостов крана с чертежами на оснастку (при необходимости)
Большой опыт в проектировании грузоподъемного оборудования, более 2000 реализованных проектов!
ID: 62059380
Sotuvchiga murojaat qilish
xxx xxx xxx
Joylashtirildi 01/12/2025
Проектирование грузоподъемных Кранов
Foydalanuvchi
Joylashuv