Asosiy kontentga oʻtish
Chat
  • O'Z
  • РУ

Bildirishnoma

E‘lon berish
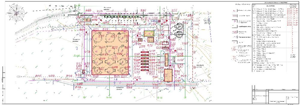
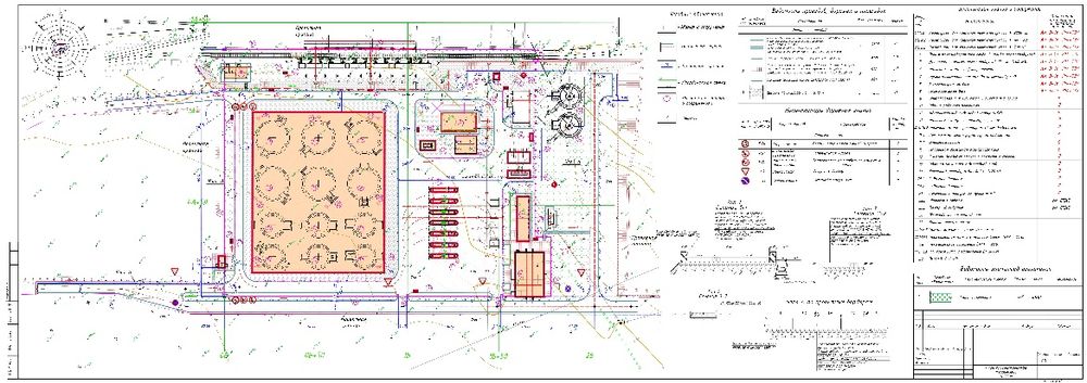
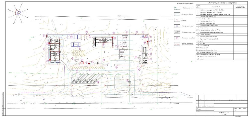
Проектирование часть Генплана
Проектирование часть Генплана
Проектирование часть Генплана
Проектирование часть Генплана
Проектирование часть Генплана
Reklama qilishKoʻtarish

Biznes

Turi: Boshqa

Tavsif

Проектирование часть Генплана
Разбивочный план
План организация рельефа
План земляных масс
План благоустройства
Объемы для сметы
Работаю и дистанционно, главное четко объяснения.
ID: 61860257

Sotuvchiga murojaat qilish

Dilshod

OLXda yanvar, 2017 beri

Oxirgi marta bugun 01:32 da bo'lgan

xxx xxx xxx

Joylashtirildi 14/10/2025

Проектирование часть Генплана

Foydalanuvchi

Joylashuv

Телефонингиз учун бепул илова