Biznes
Koʻchmas mulk turi: Do’konlar/butiklar, Salonlar, Restoranlar/kafelar/barlar, Ofislar, Omborxonalar, Alohida turgan binolar, Dam olish bazalari, Ishlab chiqarish uchun mo’ljallangan xona-joylar, Erkin maqsaddagi xona-joylar
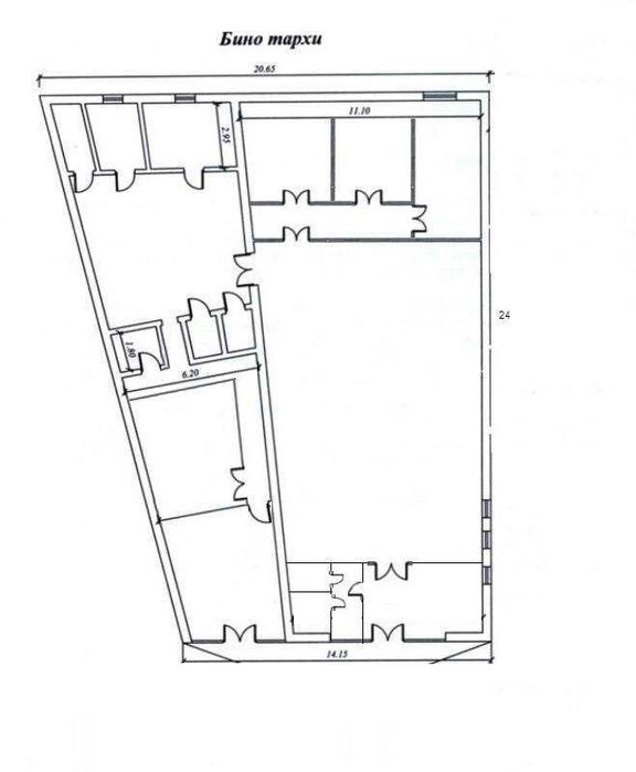
Umumiy maydon: 437 m²
Vositachilik haqqi: Yo’q
Tavsif
Продажа коммерческое помещения
#Мирзоулугбек Район, ул.арслон боб
Ориентир: метро Буюк Ипак Йули и Пушкина. Буз базара,
рядом находится таможенные склады и склады для хранения товаров.
Комнат - 4
Квадратура- 437м²
Этаж - 1
Парковка- 15
Мощность электричества - кВт
#k18
Описание - Имеется место для парковки на 15 авто, ресепшен, большой зал - OPEN SPACE, 3 комнаты, столовая, кухня, гардеробная. Арендная плата от арендодатора Чистый Берег Белорусской компании на 2025 год заключён контракт на 5 000 у.е 437 кв по перечислению + 200 налоги для получения общ суммы чистыми
4 санузла, генераторная.
Цена - 550 000$ торг уместен
#Мирзоулугбек Район, ул.арслон боб
Ориентир: метро Буюк Ипак Йули и Пушкина. Буз базара,
рядом находится таможенные склады и склады для хранения товаров.
Комнат - 4
Квадратура- 437м²
Этаж - 1
Парковка- 15
Мощность электричества - кВт
#k18
Описание - Имеется место для парковки на 15 авто, ресепшен, большой зал - OPEN SPACE, 3 комнаты, столовая, кухня, гардеробная. Арендная плата от арендодатора Чистый Берег Белорусской компании на 2025 год заключён контракт на 5 000 у.е 437 кв по перечислению + 200 налоги для получения общ суммы чистыми
4 санузла, генераторная.
Цена - 550 000$ торг уместен
ID: 61636792
Sotuvchiga murojaat qilish
xxx xxx xxx

