Biznes
Turarjoy turi: Ikkilamchi bozor
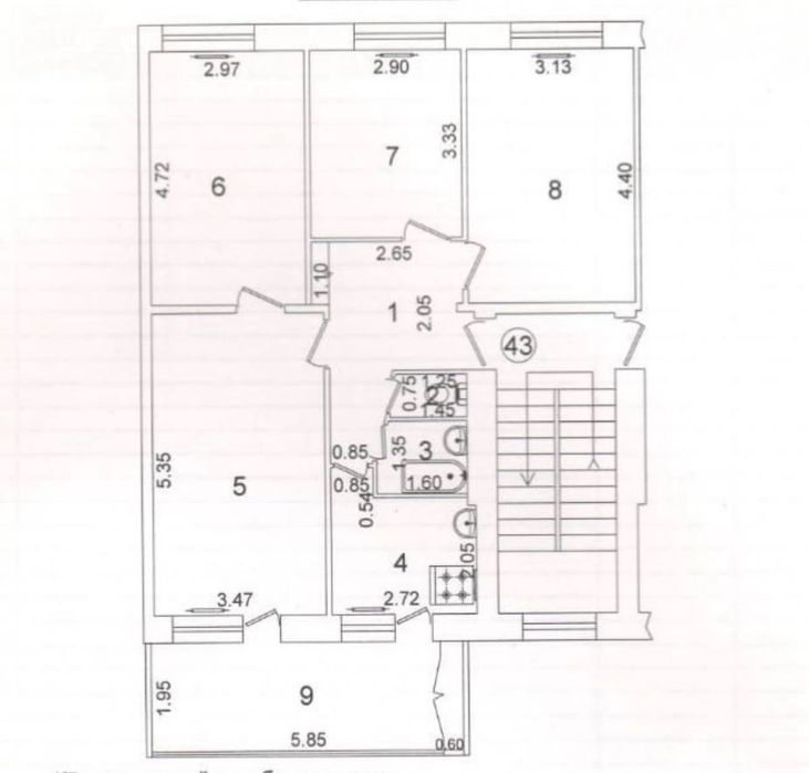
Xonalar soni: 4
Umumiy maydon: 85
Qavati: 2
Uy qavatliligi: 4
Mebelli: Yoʻq
Yaqinida joylashgan: Koʻngilochar muassasalar, Bekatlar, Maktab, Supermarket, doʻkonlar, Restoran, kafelar, Bolalar maydonchasi, Park, yashil zona, Bolalar bogʻchasi, Kasalxona, poliklinika, turargoh
Taʼmiri: Taʼmir talab
Vositachilik haqqi: Yo’q
Tavsif
Kvartira sotiladi
Tuman: Yunusobod
Manzil: C5
4-xona
Qavat: 2
Qavatligi: 4
Maydon - 85м2
Remont
Narx:: 109.000
Азиз
Tuman: Yunusobod
Manzil: C5
4-xona
Qavat: 2
Qavatligi: 4
Maydon - 85м2
Remont
Narx:: 109.000
Азиз
ID: 62317911
Sotuvchiga murojaat qilish
xxx xxx xxx
Joylashtirildi 19/11/2025
Продажа ц5 4/2/4 срочно без ремонта
109 000 у.е.
Foydalanuvchi
Joylashuv
Toshkent, Yunusobod tumani
Toshkent viloyati