Biznes
Koʻchmas mulk turi: Salonlar, Restoranlar/kafelar/barlar, Ofislar, Omborxonalar, Alohida turgan binolar
Umumiy maydon: 10 000 m²
Uy qavatliligi: 11
Taʼmiri: Qora suvoq
Parkovka: Bor
Vositachilik haqqi: Yo’q
Tavsif
Предлагаются современные офисные помещения в новом бизнес-центре.
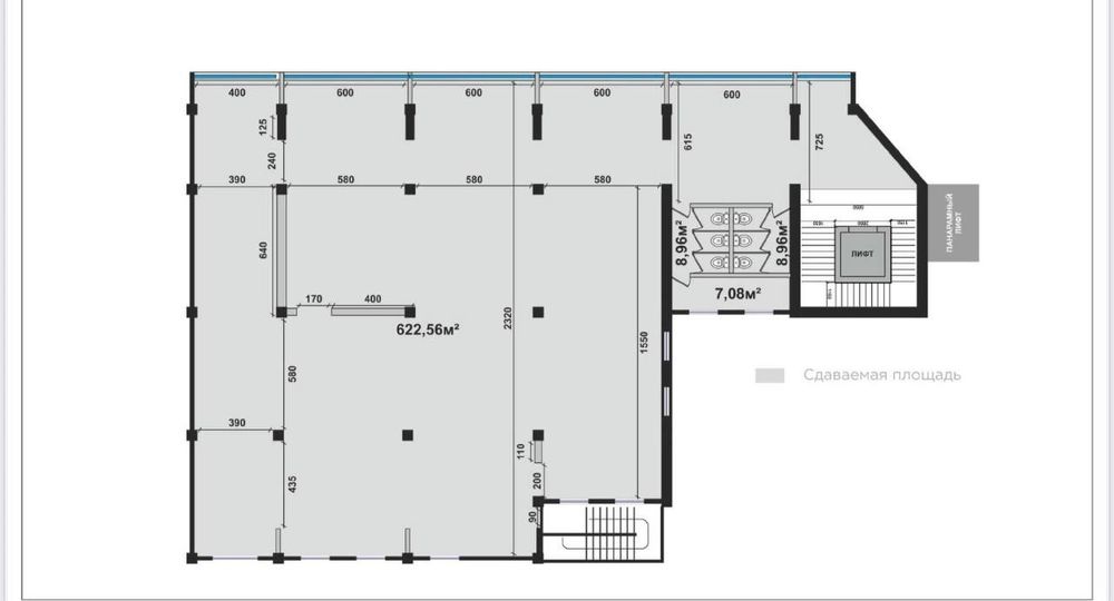
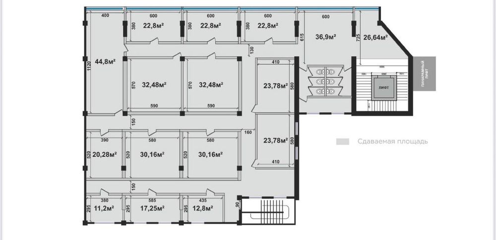
Продажа только двух этажей с 5 по 9 на выбор, любая квадратура, любая площадь на ваш выбор.
Преимущества:
• Развитая инфраструктура района
• Удобная парковка — мест хватает всем
• Метро в шаговой доступности
• Планировки: open space или кабинеты
Статус этажей:
1–3 этажи уже сданы, доступны помещения с 4 этажа и выше.
• Стоимость продажи: 31.250.000 сум за 1 м²
Реальным клиентам - реальные уступки!
Номер для связи : 998953133/981424545
Продажа только двух этажей с 5 по 9 на выбор, любая квадратура, любая площадь на ваш выбор.
Преимущества:
• Развитая инфраструктура района
• Удобная парковка — мест хватает всем
• Метро в шаговой доступности
• Планировки: open space или кабинеты
Статус этажей:
1–3 этажи уже сданы, доступны помещения с 4 этажа и выше.
• Стоимость продажи: 31.250.000 сум за 1 м²
Реальным клиентам - реальные уступки!
Номер для связи : 998953133/981424545
ID: 61990619
Sotuvchiga murojaat qilish
xxx xxx xxx
Joylashtirildi 08/11/2025
Продаётся офис в бизнес центре
31 250 000 so’m
Foydalanuvchi
Joylashuv
Mirobod
Toshkent viloyati