Asosiy kontentga oʻtish
Chat
  • O'Z
  • РУ

Bildirishnoma

E‘lon berish
Продаётся и Сдаётся офис в бизнес центре
Продаётся и Сдаётся офис в бизнес центре
Продаётся и Сдаётся офис в бизнес центре
Продаётся и Сдаётся офис в бизнес центре
Продаётся и Сдаётся офис в бизнес центре
Reklama qilishKoʻtarish

Biznes

Koʻchmas mulk turi: Do’konlar/butiklar, Salonlar, Restoranlar/kafelar/barlar, Ofislar

Umumiy maydon: 10 000 m²

Uy qavatliligi: 11

Binoda bor: Signalizatsiya, Yong’in signalizatsiyasi, Video kuzatuv

Parkovka: Bor

Vositachilik haqqi: Yo’q

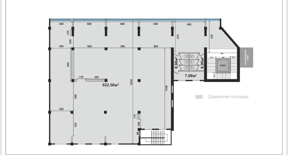
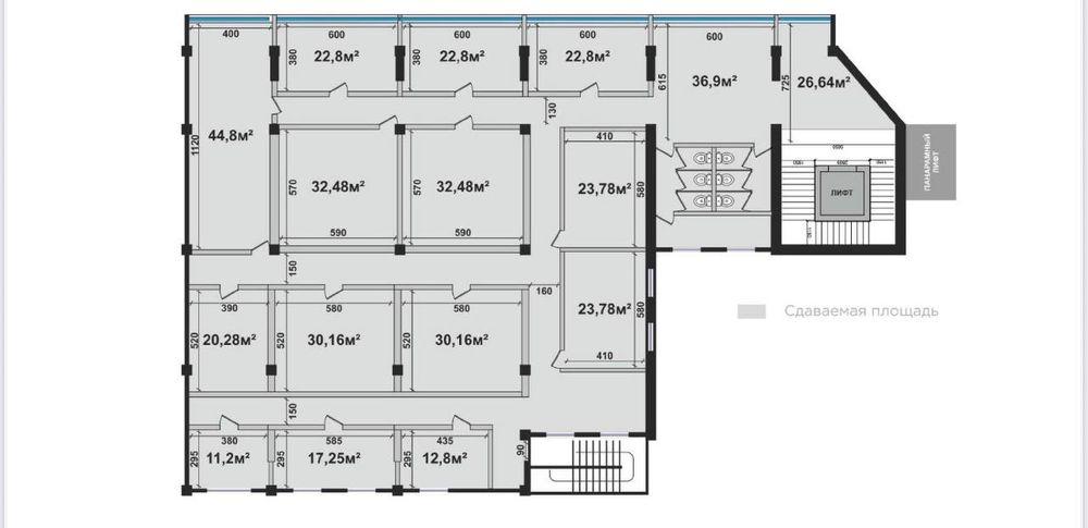
Tavsif

Предлагаются современные офисные помещения в новом бизнес-центре. Возможна аренда с ремонтом или без ремонта — на ваш выбор.

Преимущества:
• Развитая инфраструктура района
• Удобная парковка — мест хватает всем
• Метро в шаговой доступности
• Планировки: open space или кабинеты

Статус этажей:
1–3 этажи уже сданы, доступны помещения с 4 этажа и выше.

Стоимость аренды:
• Без ремонта — 250000 сум /м²
• С ремонтом — 312500 сум /м²
ID: 62223751

Sotuvchiga murojaat qilish

Shaxzod

OLXda mart, 2025 beri

Oxirgi marta bugun 08:27 da bo'lgan

xxx xxx xxx

Joylashtirildi Bugunda 08:20

Продаётся и Сдаётся офис в бизнес центре

250 000 so’m

Foydalanuvchi

Joylashuv

Location

Toshkent, Yakkasaroy tumani

Toshkent viloyati

Телефонингиз учун бепул илова