Asosiy kontentga oʻtish
Chat
  • O'Z
  • РУ

Bildirishnoma

E‘lon berish
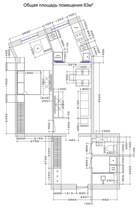
Продаётся 2-х комнатная квартира каробка
Reklama qilishKoʻtarish

Jismoniy shaxs

Turarjoy turi: Yangi qurilgan uylar

Xonalar soni: 2

Umumiy maydon: 63

Qavati: 3

Uy qavatliligi: 9

Qurilish turi: Gʻishtli

Rejasi: Alohida ajratilgan

Sanuzel: Alohida

Mebelli: Yoʻq

Kvartirada bor: Internet, Telefon

Yaqinida joylashgan: Bolalar maydonchasi, Bolalar bogʻchasi, Bekatlar, Restoran, kafelar, Supermarket, doʻkonlar

Taʼmiri: Tozalashdan avvalgi pardoz

Vositachilik haqqi: Yo’q

Tavsif

Адрес: Яккасарайский р-н
Ор-р: Саламатина.
2/3/9,
63 м²
Комнаты разделеные.
Состояния: коробка с кадастром
Первая линия.
Цена: $ 68.000 срочно есть небольшой торг

978486699
ID: 61929299

Sotuvchiga murojaat qilish

Недвижимости в Ташкенте

OLXda aprel, 2025 beri

Oxirgi marta bugun 11:35 da bo'lgan

xxx xxx xxx

Joylashtirildi Bugunda 09:44

Продаётся 2-х комнатная квартира каробка

68 000 у.е.

Kelishilgan

Foydalanuvchi

Joylashuv

Location

Toshkent, Yakkasaroy tumani

Toshkent viloyati

Телефонингиз учун бепул илова