Asosiy kontentga oʻtish
Chat
  • O'Z
  • РУ

Bildirishnoma

E‘lon berish
Продам помещения в бизнес центре|Любая площадь|Офис|Office|возле метро
Продам помещения в бизнес центре|Любая площадь|Офис|Office|возле метро
Продам помещения в бизнес центре|Любая площадь|Офис|Office|возле метро
Продам помещения в бизнес центре|Любая площадь|Офис|Office|возле метро
Продам помещения в бизнес центре|Любая площадь|Офис|Office|возле метро
Продам помещения в бизнес центре|Любая площадь|Офис|Office|возле метро
Продам помещения в бизнес центре|Любая площадь|Офис|Office|возле метро
Reklama qilishKoʻtarish

Biznes

Koʻchmas mulk turi: Ofislar, Binoning bir qismi, Alohida turgan binolar

Umumiy maydon: 10 000 m²

Joylashuvi: Biznes markaz

Uy qavatliligi: 11

Taʼmiri: Tozalashdan avvalgi pardoz

Binoda bor: Yong’in signalizatsiyasi, Barcha kommunikatsiya aloqalari, Signalizatsiya, Video kuzatuv, Kirish gruppasi

Parkovka: Bor

Vositachilik haqqi: Yo’q

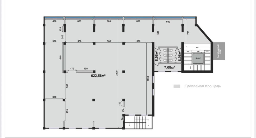
Tavsif

Предлагаются современные офисные помещения в новом бизнес-центре.

Продажа только двух этажей с 5 по 9 на выбор, любая квадратура, любая площадь на ваш выбор.

Преимущества:
• Развитая инфраструктура района
• Удобная парковка — мест хватает всем
• Метро в шаговой доступности
• Планировки: open space или кабинеты

Статус этажей:
1–3 этажи уже сданы, доступны помещения с 4 этажа и выше.

• Стоимость продажи: 2.500 у.е. за 1 м²

Реальным клиентам - реальные уступки!
ID: 61849815

Sotuvchiga murojaat qilish

Investor

OLXda dekabr, 2023 beri

So'nggi faollik 31-oktabr, 2025

xxx xxx xxx

Joylashtirildi 04/11/2025

Продам помещения в бизнес центре|Любая площадь|Офис|Office|возле метро

2 500 у.е.

Kelishilgan

Foydalanuvchi

Joylashuv

Location

Toshkent, Yashnobod tumani

Toshkent viloyati

Телефонингиз учун бепул илова