Asosiy kontentga oʻtish
Chat
  • O'Z
  • РУ

Bildirishnoma

E‘lon berish
Продам квартиру ул. Садык Азимов
Reklama qilishKoʻtarish

Biznes

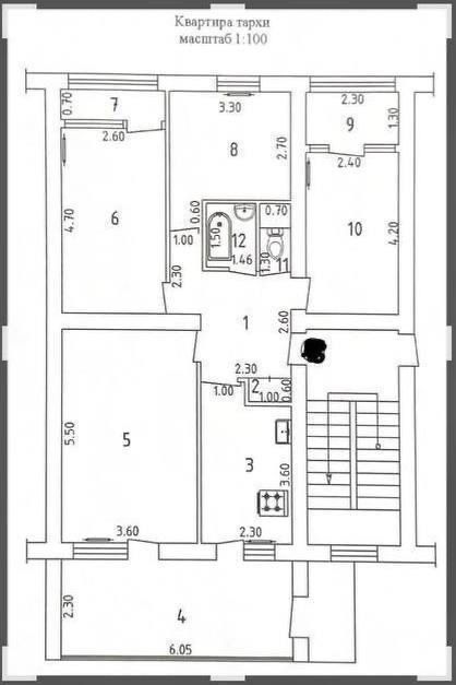
Turarjoy turi: Ikkilamchi bozor

Xonalar soni: 4

Yashash maydoni: 90 m²

Umumiy maydon: 100

Oshxona maydoni: 12 m²

Qavati: 3

Uy qavatliligi: 4

Qurilish turi: Gʻishtli

Rejasi: Alohida ajratilgan

Uy qurilgan/topshiriladigan yil: 1980 - 1989

Sanuzel: Alohida

Mebelli: Yoʻq

Shiftining balandligi: 2.80

Kvartirada bor: Kabelli TV, Internet, Telefon

Yaqinida joylashgan: Koʻngilochar muassasalar, Bekatlar, Maktab, Supermarket, doʻkonlar, Restoran, kafelar, Bolalar maydonchasi, Park, yashil zona, Bolalar bogʻchasi, Kasalxona, poliklinika, turargoh

Taʼmiri: Taʼmir talab

Vositachilik haqqi: Yo’q

Tavsif

Продается квартира в центре, Ц-1
Адрес: ул. Садык Азимова (ориентир — кафе “Экорн”)
Планировка: 4 комнаты, 3-й этаж из 4
Материал: кирпичный дом
Площадь: 100 кв.м
Состояние: чистое
Отличное расположение, развитая инфраструктура

Цена: 145 000 у.е

+99898-077-55-55
ID: 62343497

Sotuvchiga murojaat qilish

Facebook connected icon

ТОП НЕДВИЖИМОСТЬ

OLXda aprel, 2015 beri

Oxirgi marta bugun 07:26 da bo'lgan

xxx xxx xxx

Joylashtirildi 05/12/2025

Продам квартиру ул. Садык Азимов

145 000 у.е.

Foydalanuvchi

Joylashuv

Location

Toshkent, Mirobod tumani

Toshkent viloyati

Телефонингиз учун бепул илова