Asosiy kontentga oʻtish
Chat
  • O'Z
  • РУ

Bildirishnoma

E‘lon berish
Продается 5ти комнатная квартира в ЖК Габус, Яккасарайский р-н
Продается 5ти комнатная квартира в ЖК Габус, Яккасарайский р-н
Продается 5ти комнатная квартира в ЖК Габус, Яккасарайский р-н
Продается 5ти комнатная квартира в ЖК Габус, Яккасарайский р-н
Продается 5ти комнатная квартира в ЖК Габус, Яккасарайский р-н
Продается 5ти комнатная квартира в ЖК Габус, Яккасарайский р-н
Reklama qilishKoʻtarish

Biznes

Turarjoy turi: Yangi qurilgan uylar

Xonalar soni: 5

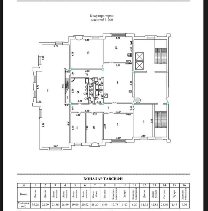
Umumiy maydon: 325

Qavati: 9

Uy qavatliligi: 9

Qurilish turi: Gʻishtli

Rejasi: Alohida ajratilgan

Mebelli: Yoʻq

Taʼmiri: Tozalashdan avvalgi pardoz

Vositachilik haqqi: Yo’q

Tavsif

НОВОСТРОЙКА
ЖК: GABUS /1
Район: Яккасарайский
Улица: Кичик Бешагач и Нукусская

Комнат: 5ком
Этаж: 9
Этажность: 9
Площадь: 325м² 133м2+192м2 с терассой
Состояние: предчистовая отделка / перегородки/ электромонтаж
Примечание: 50м2 кладовая в подарок! Квартира разделена на 2 кадастра.

ЦЕНА: 465.000у.е.: 225.000у.е. +240.000у.е.
Телефон: +998500404257
ID: 61882438

Sotuvchiga murojaat qilish

Tashkent Avenue Estate

OLXda fevral, 2025 beri

Oxirgi marta bugun 06:55 da bo'lgan

xxx xxx xxx

Joylashtirildi 06/11/2025

Продается 5ти комнатная квартира в ЖК Габус, Яккасарайский р-н

465 000 у.е.

Kelishilgan

Foydalanuvchi

Joylashuv

Location

Toshkent, Yakkasaroy tumani

Toshkent viloyati

Телефонингиз учун бепул илова