Jismoniy shaxs
Turarjoy turi: Yangi qurilgan uylar
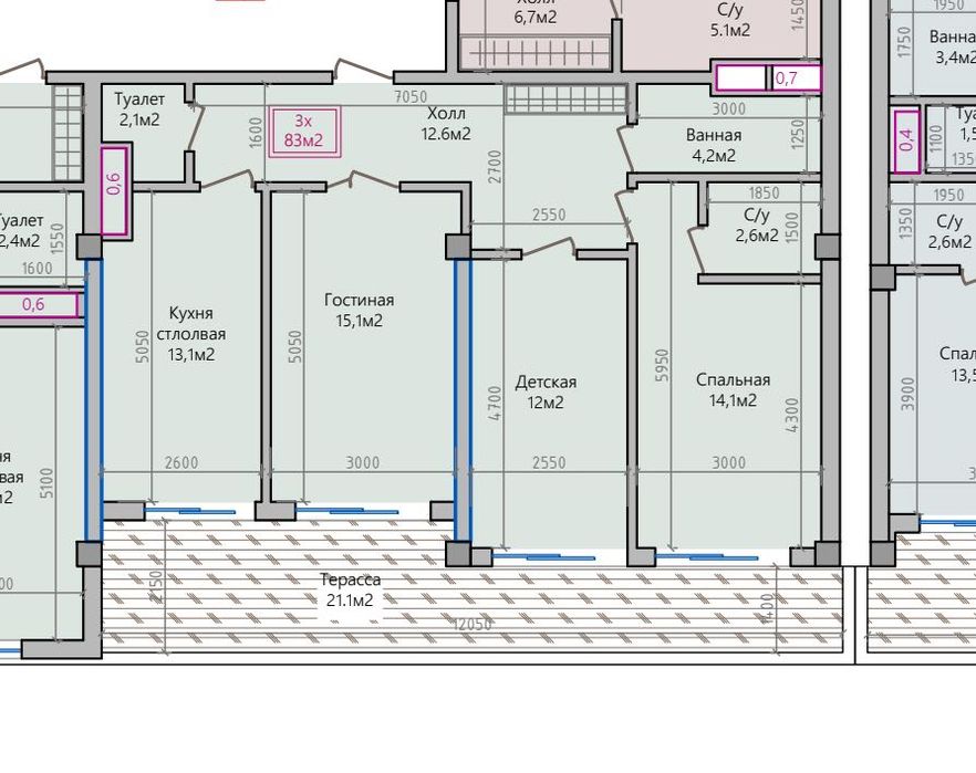
Xonalar soni: 3
Yashash maydoni: 70 m²
Umumiy maydon: 104.50
Oshxona maydoni: 15 m²
Qavati: 2
Uy qavatliligi: 16
Qurilish turi: Blokli
Rejasi: Alohida ajratilgan
Uy qurilgan/topshiriladigan yil: 2025
Sanuzel: 2 va undan koʻp sanuzel
Mebelli: Yoʻq
Shiftining balandligi: 3.30
Kvartirada bor: Balkon
Yaqinida joylashgan: Kasalxona, poliklinika, Maktab, Bolalar maydonchasi, Bolalar bogʻchasi, Bekatlar, Park, yashil zona, Koʻngilochar muassasalar, Restoran, kafelar, turargoh, Supermarket, doʻkonlar
Taʼmiri: Qora suvoq
Vositachilik haqqi: Yo’q
Tavsif
Продается 3х комнатная квартира в новостройке Ness City. Кадастр будет готов летом 2026 года
ID: 62140878
Sotuvchiga murojaat qilish
xxx xxx xxx
Joylashtirildi 03/03/2026
Продается 3х комнатная квартира
75 000 у.е.
Kelishilgan
Joylashuv
Toshkent, Sirg‘ali tumani
Toshkent viloyati