Asosiy kontentga oʻtish
Chat
  • O'Z
  • РУ

Bildirishnoma

E‘lon berish
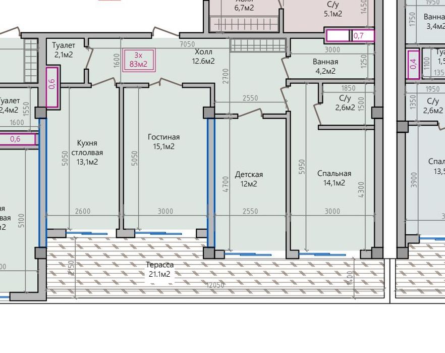
Продается 3х комнатная квартира
Продается 3х комнатная квартира
Продается 3х комнатная квартира
Reklama qilishKoʻtarish

Jismoniy shaxs

Turarjoy turi: Yangi qurilgan uylar

Xonalar soni: 3

Yashash maydoni: 70 m²

Umumiy maydon: 104.50

Oshxona maydoni: 15 m²

Qavati: 2

Uy qavatliligi: 16

Qurilish turi: Blokli

Rejasi: Alohida ajratilgan

Uy qurilgan/topshiriladigan yil: 2025

Sanuzel: 2 va undan koʻp sanuzel

Mebelli: Yoʻq

Shiftining balandligi: 3.30

Kvartirada bor: Balkon

Yaqinida joylashgan: Kasalxona, poliklinika, Bolalar maydonchasi, Bolalar bogʻchasi, Bekatlar, Park, yashil zona, Koʻngilochar muassasalar, Restoran, kafelar, turargoh, Supermarket, doʻkonlar, Maktab

Taʼmiri: Qora suvoq

Vositachilik haqqi: Yo’q

Tavsif

Продается 3х комнатная квартира в новостройке Ness City. Кадастр будет готов в конце января 2026 года
ID: 62140878

Sotuvchiga murojaat qilish

SSS

OLXda iyul, 2020 beri

Oxirgi marta kecha 18:27 da bo'lgan

xxx xxx xxx

Joylashtirildi 05/11/2025

Продается 3х комнатная квартира

78 000 у.е.

Kelishilgan

Foydalanuvchi

Joylashuv

Location

Toshkent, Sirg‘ali tumani

Toshkent viloyati

Телефонингиз учун бепул илова