Asosiy kontentga oʻtish
Chat
  • O'Z
  • РУ

Bildirishnoma

E‘lon berish
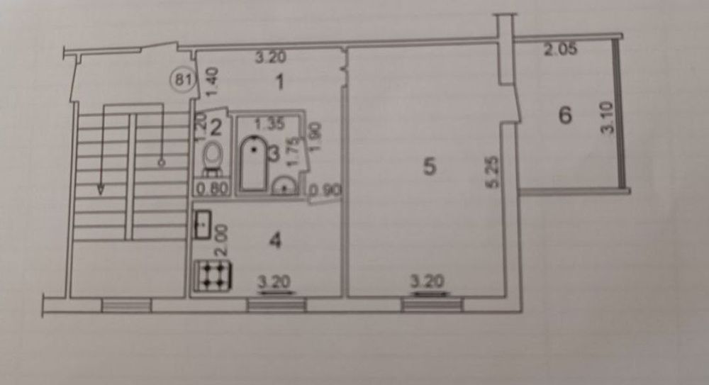
Продается 1/2/5 квартира Карасу-6
Reklama qilishKoʻtarish

Biznes

Turarjoy turi: Ikkilamchi bozor

Xonalar soni: 1

Umumiy maydon: 38

Qavati: 2

Uy qavatliligi: 5

Sanuzel: Alohida

Mebelli: Yoʻq

Taʼmiri: Oʻrtacha

Vositachilik haqqi: Yo’q

Tavsif

Продается 1я квартира на 2м этаже 5ти этажного дома.
38м2 балкон 2*3
Средний ремонт
Ориентир: 275 школа
Ипотека да
Цена: 48500$
Подробности по телефону:
+99895808-33-37 Ирина
И
ID: 61971424

Sotuvchiga murojaat qilish

Ирина

OLXda aprel, 2022 beri

Oxirgi marta kecha 15:35 da bo'lgan

xxx xxx xxx

Joylashtirildi 23/10/2025

Продается 1/2/5 квартира Карасу-6

48 500 у.е.

Kelishilgan

Foydalanuvchi

Joylashuv

Location

Toshkent, Mirzo-Ulug‘bek tumani

Toshkent viloyati

Телефонингиз учун бепул илова