Asosiy kontentga oʻtish
Chat
  • O'Z
  • РУ

Bildirishnoma

E‘lon berish
Породётся квартира (новостройка 74,2 кв.м), 7 этаж,
Породётся квартира (новостройка 74,2 кв.м), 7 этаж,
Породётся квартира (новостройка 74,2 кв.м), 7 этаж,
Породётся квартира (новостройка 74,2 кв.м), 7 этаж,
Породётся квартира (новостройка 74,2 кв.м), 7 этаж,
Породётся квартира (новостройка 74,2 кв.м), 7 этаж,
Породётся квартира (новостройка 74,2 кв.м), 7 этаж,
Породётся квартира (новостройка 74,2 кв.м), 7 этаж,
Reklama qilishKoʻtarish

Jismoniy shaxs

Turarjoy turi: Yangi qurilgan uylar

Xonalar soni: 3

Yashash maydoni: 74.20 m²

Umumiy maydon: 74.20

Qavati: 7

Uy qavatliligi: 13

Qurilish turi: Gʻishtli

Rejasi: Alohida ajratilgan

Uy qurilgan/topshiriladigan yil: 2023

Sanuzel: Aralash

Mebelli: Yoʻq

Shiftining balandligi: 3.40

Kvartirada bor: Balkon

Yaqinida joylashgan: Kasalxona, poliklinika, Maktab, Bolalar maydonchasi, Bolalar bogʻchasi, Koʻngilochar muassasalar, Restoran, kafelar, turargoh

Taʼmiri: Qora suvoq

Vositachilik haqqi: Bor

Tavsif

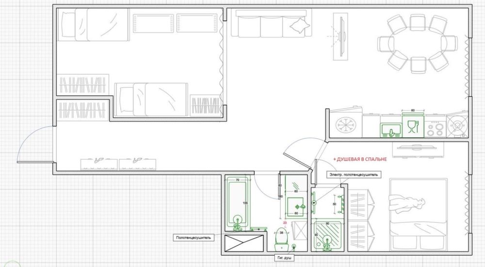
Продаю свою квартиру в Яшнабадском районе, (ул. Асалабад) с площадью 74 кв.м, коробка, 7 этаж с балконом! По желанию можно сделать 3 комнатную квартиру. Удобная локация, тихий район! Цена договорная.

Тел: 90 321 90 19
97 404 18 36
ID: 41727911

Sotuvchiga murojaat qilish

baxa002_1993

OLXda iyul, 2020 beri

So'nggi faollik 09-oktabr, 2025

Joylashtirildi 17/11/2025

Породётся квартира (новостройка 74,2 кв.м), 7 этаж,

70 000 у.е.

Kelishilgan

Foydalanuvchi

Joylashuv

Location

Toshkent, Yashnobod tumani

Toshkent viloyati

Телефонингиз учун бепул илова