Biznes
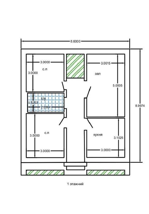
Xonalar soni: 3
Umumiy maydon: 80 m²
Yashash maydoni: 80 m²
Joylashuvi: Shaharda
Uy qavatliligi: 1
Shiftining balandligi: 3.20
Mebelli: Yoʻq
Uchastka maydoni: 0.80
Uy holati: Mualliflik loyihasi, Oʻrtacha
Uy turi: Uy
Qurilish turi: Gʻishtli
Suv: Uyda
Elektr taʼminoti: Bor
Isitish: Gazda
Gaz: Magistral
Sanuzel: Aralash
Uy qurilgan/topshiriladigan yil: 2026 y'il topshiriladi
Uyda / Uchastkada bor: Kanalizatsiya
Yaqinida joylashgan: Maktab, Bolalar bogʻchasi, Bekatlar, Supermarket, doʻkonlar
Vositachilik haqqi: Yo’q
Tavsif
"Yangi Uylar qulaylik Yaratamiz"
Район: Юнусабад — ориентир: мечеть Хасанбой (400 м), школа №313 (500 м)
Очень удобное место: рядом всё необходимое — школы, мечеть, магазины, транспорт до центра 10–20 мин!
Проект: Таунхаус — всего 12 домов в закрытом комплексе
Этап: котлован (начальная стадия — самая низкая цена входа!)
Варианты:
1-уровневый (3 комнаты + кухня) — 80 м² — 65 000 $ (с ремонтом под ключ!)
Площадь земли: 0,80 м² — компактно
Подвал: наличие на договорной основе (можно обсудить и добавить!)
Почему выгодно именно сейчас?
Цена на котловане — на 30–50% ниже, чем будет после сдачи (рынок растёт +5–10% в год
Идеально для семьи: тишина, приватность, свой двор, без шума многоэтажек
Инвестиция: перепродажа после сдачи +30–40% или аренда 7–9% годовых
Ремонт включён — заезжайте и живите без доп. вложений!
Продажа надёжная — документы в порядке
Договор купли-продажи земли/участка.
Звоните/пишите в Telegram/ +998 95 574 57 53
12 домов! Покажем на месте, посчитаем под вас, поможем с документами.
Не упустите выгодную цену
Район: Юнусабад — ориентир: мечеть Хасанбой (400 м), школа №313 (500 м)
Очень удобное место: рядом всё необходимое — школы, мечеть, магазины, транспорт до центра 10–20 мин!
Проект: Таунхаус — всего 12 домов в закрытом комплексе
Этап: котлован (начальная стадия — самая низкая цена входа!)
Варианты:
1-уровневый (3 комнаты + кухня) — 80 м² — 65 000 $ (с ремонтом под ключ!)
Площадь земли: 0,80 м² — компактно
Подвал: наличие на договорной основе (можно обсудить и добавить!)
Почему выгодно именно сейчас?
Цена на котловане — на 30–50% ниже, чем будет после сдачи (рынок растёт +5–10% в год
Идеально для семьи: тишина, приватность, свой двор, без шума многоэтажек
Инвестиция: перепродажа после сдачи +30–40% или аренда 7–9% годовых
Ремонт включён — заезжайте и живите без доп. вложений!
Продажа надёжная — документы в порядке
Договор купли-продажи земли/участка.
Звоните/пишите в Telegram/ +998 95 574 57 53
12 домов! Покажем на месте, посчитаем под вас, поможем с документами.
Не упустите выгодную цену
ID: 63096490
Sotuvchiga murojaat qilish
xxx xxx xxx
Joylashtirildi Bugunda 10:41
Под котлован Юнусабад! 65 тыс./ у.е. с ремонтом
65 000 у.е.
Foydalanuvchi
Joylashuv
Toshkent, Yunusobod tumani
Toshkent viloyati