Asosiy kontentga oʻtish
Chat
  • O'Z
  • РУ

Bildirishnoma

E‘lon berish
Массив Хумаюн 1/1/5 Ориентир Ахмад-Югнаки Ттз.
Массив Хумаюн 1/1/5 Ориентир Ахмад-Югнаки Ттз.
Массив Хумаюн 1/1/5 Ориентир Ахмад-Югнаки Ттз.
Reklama qilishKoʻtarish

Biznes

Turarjoy turi: Ikkilamchi bozor

Xonalar soni: 1

Umumiy maydon: 38

Qavati: 1

Uy qavatliligi: 5

Sanuzel: Alohida

Mebelli: Yoʻq

Taʼmiri: Oʻrtacha

Vositachilik haqqi: Yo’q

Tavsif

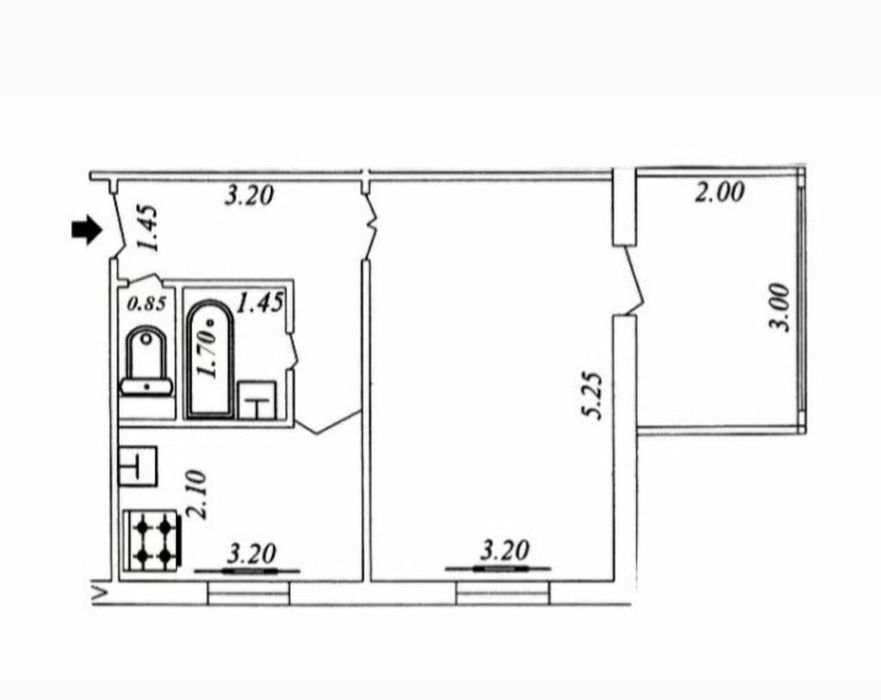
Продаётся квартира 1/1/5
Мирзо-Улугбекский Район Массив Хумаюн Ор-р Ахмад Югнаки Ттз .
Балкон 2×3
Общая площадь 38 кв.м
Подробности по телефону.
Тел: +998885491221
ID: 61826083

Sotuvchiga murojaat qilish

998885491221

OLXda sentabr, 2025 beri

So'nggi faollik 29-oktabr, 2025

xxx xxx xxx

Joylashtirildi 26/10/2025

Массив Хумаюн 1/1/5 Ориентир Ахмад-Югнаки Ттз.

43 000 у.е.

Kelishilgan

Foydalanuvchi

Joylashuv

Location

Toshkent, Mirzo-Ulug‘bek tumani

Toshkent viloyati

Телефонингиз учун бепул илова