Jismoniy shaxs
Tavsif
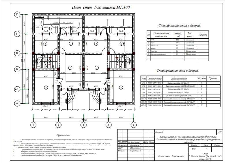
Loyihalashtirish xizmatlari: Sizga kerak bo’lgan har qanday texnik loyiha biz bilan tayyor bo’ladi!
Biz sizning barcha texnik loyiha talablaringizni yuqori sifatli va qonuniy va professionalizm bilan bajaramiz. Quyidagi sohalarda xizmatlarimizdan foydalanishingiz mumkin:
Loyiha Chizish Xizmatlari: O’lchov va Proyektlar!
Sizning uy yoki ofisingizni loyihalashda kerakli o’lchovlarni olish va sifatli loyiha chizish bo’yicha mutaxassis xizmatlarini taklif etamiz. Biz bilan hamkorlik qilish orqali siz o’z uyingizni mukammal rejalashtirishingiz mumkin.
Nima uchun bizni tanlashingiz kerak?
1. Aniq O’lchovlar
Har qanday loyiha uchun aniq o’lchovlar olish juda muhimdir. Bizning mutaxassislarimiz ichki va tashqi o’lchovlarni professional usulda olib, uyingizning to’liq tasvirini taqdim etadi.
• Ichki o’lchovlar: Xonalar, devorlar, derazalar va boshqa elementlarning o’lchovlari.
• Tashqi o’lchovlar: Bino atrofidagi maydon, yo’llar, bog’lar va boshqa tashqi elementlar.
2. Professional Loyiha Chizish
O’lchovlar asosida yuqori sifatli loyiha chizmalarini tayyorlaymiz. Har bir loyiha sizning ehtiyojlaringiz va talablaringizga mos ravishda ishlab chiqiladi.
• Interyer dizayn loyihalari: Xonalar uchun ergonomik va estetik yechimlar.
• Tashqi dizayn loyihalari: Binoning tashqi ko’rinishi va atrof-muhitga mos keladigan chizmalar.
• Dastlabki chizmalardan yakuniy loyiha hujjatlarigacha: Har bir bosqichda sifat va batafsillikka alohida e’tibor beriladi.
• O’lchovlar olish: Mutaxassislarimiz sizning ob’yektga kelib, kerakli o’lchovlarni olib, aniq va batafsil hisobot tayyorlaydi.
• Kengash va maslahatlar: Biz sizga o’lchov olish jarayonida va loyiha chizishda yordam beramiz, shuningdek, eng yaxshi yechimlarni taqdim etamiz.
• Lojiq va san’at: Biz o’lchovlar va loyiha chizish jarayonida ilmiy asoslarni va ijodkorlikni birlashtiramiz.
• Tez va sifatli xizmat: O’lchovlar va loyiha chizish jarayonini tez va samarali tarzda amalga oshiramiz.
• Katta tajriba: Bizda 9 yillik turli xil loyihalar bilan ishlash tajribasi bor, bu esa sizga eng yaxshi natijalarni taqdim etadi.
• Maxsus yondashuv: Har bir loyiha individual tarzda ko’rib chiqiladi, sizning ehtiyojlaringiz va istaklaringizni hisobga olgan holda.
1. Interyer Dizayn Loyihalari
Bizning ichki dizayn xizmatlarimiz mijozlar uchun qulay va estetik jihatdan chiroyli makonlar yaratishga qaratilgan. Interyer dizaynining asosiy maqsadi - makonni funktsional va o’zgacha qilib loyihalash, bu esa uning har bir burchagini maksimal darajada ishlatish imkonini beradi.
• Zamonaviy uslub: Minimalistik, loft, klassik yoki mijozning shaxsiy didiga mos ravishda ichki dizaynlarni ishlab chiqamiz.
• Qulaylik va ergonomika: Mijozlarning xohish-istaklarini inobatga olib, makonni qulay va ergonomik tarzda rejalashtiramiz.
• Material tanlash bo’yicha maslahatlar: Sifatli va ekologik toza materiallar bilan ishlaymiz, bu esa uzoq muddat foydalanishda qulaylik beradi.
• Chiroq va yoritish yechimlari: Makon yoritilishida qulaylik va estetikani saqlab qolish uchun innovatsion yechimlar.
• Professional chizilgan loyihalar;
• Mavjud byudjet doirasida ishlash;
• Aniq va to’liq tavsiflangan loyiha hujjatlariga ega bo’lasiz.
2. Kanalizatsiya Loyihalari
Har qanday bino va inshoot uchun samarali kanalizatsiya tizimi bo’lishi shart. Biz sizga to’g’ri ishlaydigan va yuqori sifatli kanalizatsiya tizimlarini loyihalashni taklif etamiz.
• Oqava suv tizimlari loyihasi: Samarali va xavfsiz oqava suv tizimlarini loyihalaymiz, bu esa atrof-muhitga zarar yetkazmaslikni ta’minlaydi.
• Ekologik xavfsizlik: Loyihalar atrof-muhitga minimal ta’sir qiladigan texnologiyalar asosida ishlab chiqiladi.
• Inshootlarga mos yechimlar: Katta obyektlar yoki kichik uylar uchun mos va innovatsion kanalizatsiya tizimlari.
• Suvni samarali boshqarish;
• Ekologik xavfsizlik;
• Texnik xizmat ko’rsatishda qulaylik.
3. Ventilyatsiya Loyihalari
Sog’lom va toza havo har qanday bino uchun muhim ahamiyatga ega. Bizning ventilyatsiya loyihalarimiz xonadagi havo aylanishini to’g’ri va samarali yo’lga qo’yishga yordam beradi.
• Havo aylanishi tizimlari: Makon ichidagi havo aylanishini rejalashtirish va toza havoni doimiy ta’minlash.
• Sanoat ventilyatsiyasi: Katta ishlab chiqarish obyektlari va omborlar uchun optimallashtirilgan havo tizimlari.
• Uy-joy va ofis binolari: Har xil hajmdagi binolar uchun mos bo’lgan zamonaviy ventilyatsiya tizimlari.
• Xavfsiz va qulay atmosferani yaratadi;
• Havo aylanishini maksimal samaradorlikda ta’minlaydi;
• Energiya samaradorligini oshiradi va resurslar tejashga yordam beradi.
4. Elektrika Loyihalari
Elektr tizimi binoning yuragi hisoblanadi. Uni xavfsiz, samarali va qulay qilib loyihalashtirish har qanday binoning uzoq muddat ishlashini ta’minlaydi. Biz elektr tizimlari bo’yicha to’liq loyiha chizmalarini tayyorlaymiz, ularning barchasi xalqaro va milliy xavfsizlik me’yorlariga mos keladi.
• Elektr ta’minoti tizimlari: Har qanday bino va inshootlar uchun yuqori sifatli elektr ta’minoti tizimlarini ishlab chiqamiz.
• Yoritish tizimlari loyihasi: Binolar uchun energiyani tejaydigan, qulay va estetik yoritish tizimlarini loyihalaymiz.
• Energiyani tejash va samaradorlik: Loyihalarimiz energiyani tejashga qaratilgan va zamonaviy texnologiyalardan foydalaniladi.
• Xavfsiz va ishonchli elektr tizimi;
• Uzoq muddatli xizmat ko’rsatish;
• Qurilish va o’rnatishda qulaylik.
Nima uchun bizni tanlashingiz kerak?
• Professional yondashuv: Har bir loyiha puxta o’ylangan va yuqori sifatli qilib ishlab chiqiladi.
• Individual yondashuv: Sizning ehtiyojlaringiz va talablarga ko’ra loyiha chizish.
• Zamonaviy texnologiyalar: Innovatsion yechimlar va ilg’or texnologiyalar yordamida ishlaymiz.
• Sifat kafolati: Bizning barcha loyihalar yuqori sifat va xalqaro standartlarga mos keladi.
Aloqa uchun ma’lumotlar:
• Telefon: [+998 94 115 62 21]
• Ofis manzili: [Xorazm vil. Urganch shah. gurlan ko'chasi 43 uy]
Biz sizning barcha texnik loyiha talablaringizni yuqori sifatli va qonuniy va professionalizm bilan bajaramiz. Quyidagi sohalarda xizmatlarimizdan foydalanishingiz mumkin:
Loyiha Chizish Xizmatlari: O’lchov va Proyektlar!
Sizning uy yoki ofisingizni loyihalashda kerakli o’lchovlarni olish va sifatli loyiha chizish bo’yicha mutaxassis xizmatlarini taklif etamiz. Biz bilan hamkorlik qilish orqali siz o’z uyingizni mukammal rejalashtirishingiz mumkin.
Nima uchun bizni tanlashingiz kerak?
1. Aniq O’lchovlar
Har qanday loyiha uchun aniq o’lchovlar olish juda muhimdir. Bizning mutaxassislarimiz ichki va tashqi o’lchovlarni professional usulda olib, uyingizning to’liq tasvirini taqdim etadi.
• Ichki o’lchovlar: Xonalar, devorlar, derazalar va boshqa elementlarning o’lchovlari.
• Tashqi o’lchovlar: Bino atrofidagi maydon, yo’llar, bog’lar va boshqa tashqi elementlar.
2. Professional Loyiha Chizish
O’lchovlar asosida yuqori sifatli loyiha chizmalarini tayyorlaymiz. Har bir loyiha sizning ehtiyojlaringiz va talablaringizga mos ravishda ishlab chiqiladi.
• Interyer dizayn loyihalari: Xonalar uchun ergonomik va estetik yechimlar.
• Tashqi dizayn loyihalari: Binoning tashqi ko’rinishi va atrof-muhitga mos keladigan chizmalar.
• Dastlabki chizmalardan yakuniy loyiha hujjatlarigacha: Har bir bosqichda sifat va batafsillikka alohida e’tibor beriladi.
• O’lchovlar olish: Mutaxassislarimiz sizning ob’yektga kelib, kerakli o’lchovlarni olib, aniq va batafsil hisobot tayyorlaydi.
• Kengash va maslahatlar: Biz sizga o’lchov olish jarayonida va loyiha chizishda yordam beramiz, shuningdek, eng yaxshi yechimlarni taqdim etamiz.
• Lojiq va san’at: Biz o’lchovlar va loyiha chizish jarayonida ilmiy asoslarni va ijodkorlikni birlashtiramiz.
• Tez va sifatli xizmat: O’lchovlar va loyiha chizish jarayonini tez va samarali tarzda amalga oshiramiz.
• Katta tajriba: Bizda 9 yillik turli xil loyihalar bilan ishlash tajribasi bor, bu esa sizga eng yaxshi natijalarni taqdim etadi.
• Maxsus yondashuv: Har bir loyiha individual tarzda ko’rib chiqiladi, sizning ehtiyojlaringiz va istaklaringizni hisobga olgan holda.
1. Interyer Dizayn Loyihalari
Bizning ichki dizayn xizmatlarimiz mijozlar uchun qulay va estetik jihatdan chiroyli makonlar yaratishga qaratilgan. Interyer dizaynining asosiy maqsadi - makonni funktsional va o’zgacha qilib loyihalash, bu esa uning har bir burchagini maksimal darajada ishlatish imkonini beradi.
• Zamonaviy uslub: Minimalistik, loft, klassik yoki mijozning shaxsiy didiga mos ravishda ichki dizaynlarni ishlab chiqamiz.
• Qulaylik va ergonomika: Mijozlarning xohish-istaklarini inobatga olib, makonni qulay va ergonomik tarzda rejalashtiramiz.
• Material tanlash bo’yicha maslahatlar: Sifatli va ekologik toza materiallar bilan ishlaymiz, bu esa uzoq muddat foydalanishda qulaylik beradi.
• Chiroq va yoritish yechimlari: Makon yoritilishida qulaylik va estetikani saqlab qolish uchun innovatsion yechimlar.
• Professional chizilgan loyihalar;
• Mavjud byudjet doirasida ishlash;
• Aniq va to’liq tavsiflangan loyiha hujjatlariga ega bo’lasiz.
2. Kanalizatsiya Loyihalari
Har qanday bino va inshoot uchun samarali kanalizatsiya tizimi bo’lishi shart. Biz sizga to’g’ri ishlaydigan va yuqori sifatli kanalizatsiya tizimlarini loyihalashni taklif etamiz.
• Oqava suv tizimlari loyihasi: Samarali va xavfsiz oqava suv tizimlarini loyihalaymiz, bu esa atrof-muhitga zarar yetkazmaslikni ta’minlaydi.
• Ekologik xavfsizlik: Loyihalar atrof-muhitga minimal ta’sir qiladigan texnologiyalar asosida ishlab chiqiladi.
• Inshootlarga mos yechimlar: Katta obyektlar yoki kichik uylar uchun mos va innovatsion kanalizatsiya tizimlari.
• Suvni samarali boshqarish;
• Ekologik xavfsizlik;
• Texnik xizmat ko’rsatishda qulaylik.
3. Ventilyatsiya Loyihalari
Sog’lom va toza havo har qanday bino uchun muhim ahamiyatga ega. Bizning ventilyatsiya loyihalarimiz xonadagi havo aylanishini to’g’ri va samarali yo’lga qo’yishga yordam beradi.
• Havo aylanishi tizimlari: Makon ichidagi havo aylanishini rejalashtirish va toza havoni doimiy ta’minlash.
• Sanoat ventilyatsiyasi: Katta ishlab chiqarish obyektlari va omborlar uchun optimallashtirilgan havo tizimlari.
• Uy-joy va ofis binolari: Har xil hajmdagi binolar uchun mos bo’lgan zamonaviy ventilyatsiya tizimlari.
• Xavfsiz va qulay atmosferani yaratadi;
• Havo aylanishini maksimal samaradorlikda ta’minlaydi;
• Energiya samaradorligini oshiradi va resurslar tejashga yordam beradi.
4. Elektrika Loyihalari
Elektr tizimi binoning yuragi hisoblanadi. Uni xavfsiz, samarali va qulay qilib loyihalashtirish har qanday binoning uzoq muddat ishlashini ta’minlaydi. Biz elektr tizimlari bo’yicha to’liq loyiha chizmalarini tayyorlaymiz, ularning barchasi xalqaro va milliy xavfsizlik me’yorlariga mos keladi.
• Elektr ta’minoti tizimlari: Har qanday bino va inshootlar uchun yuqori sifatli elektr ta’minoti tizimlarini ishlab chiqamiz.
• Yoritish tizimlari loyihasi: Binolar uchun energiyani tejaydigan, qulay va estetik yoritish tizimlarini loyihalaymiz.
• Energiyani tejash va samaradorlik: Loyihalarimiz energiyani tejashga qaratilgan va zamonaviy texnologiyalardan foydalaniladi.
• Xavfsiz va ishonchli elektr tizimi;
• Uzoq muddatli xizmat ko’rsatish;
• Qurilish va o’rnatishda qulaylik.
Nima uchun bizni tanlashingiz kerak?
• Professional yondashuv: Har bir loyiha puxta o’ylangan va yuqori sifatli qilib ishlab chiqiladi.
• Individual yondashuv: Sizning ehtiyojlaringiz va talablarga ko’ra loyiha chizish.
• Zamonaviy texnologiyalar: Innovatsion yechimlar va ilg’or texnologiyalar yordamida ishlaymiz.
• Sifat kafolati: Bizning barcha loyihalar yuqori sifat va xalqaro standartlarga mos keladi.
Aloqa uchun ma’lumotlar:
• Telefon: [+998 94 115 62 21]
• Ofis manzili: [Xorazm vil. Urganch shah. gurlan ko'chasi 43 uy]
ID: 56685810
Sotuvchiga murojaat qilish
xxx xxx xxx
Joylashtirildi 06/04/2026
Loyiha chizish xizmatlari: Sifat, Tezlik, Qonuniylik va Sof yondashuv
Foydalanuvchi
Joylashuv