Biznes
Xonalar soni: 5
Umumiy maydon: 250 m²
Joylashuvi: Shaharda
Uy qavatliligi: 3
Mebelli: Yoʻq
Uchastka maydoni: 2.50
Uy holati: Mualliflik loyihasi, Qora suvoq
Uy turi: Kottej
Qurilish turi: Gʻishtli
Suv: Uyda, Markazlashgan suv taʼminoti
Elektr taʼminoti: Bor
Isitish: Markazlashgan, Gazda
Gaz: Magistral
Sanuzel: 2 va undan koʻp sanuzel
Uyda / Uchastkada bor: Internet, Telefon, Garaj, Kanalizatsiya, Tomorqa
Yaqinida joylashgan: Kasalxona, poliklinika, Maktab, Bolalar maydonchasi, Bolalar bogʻchasi, Bekatlar, Park, yashil zona, Koʻngilochar muassasalar, Restoran, kafelar, turargoh, Supermarket, doʻkonlar
Vositachilik haqqi: Yo’q
Tavsif
Продается коттедж
Лимонария
ор-р перекресток сельхоз университета
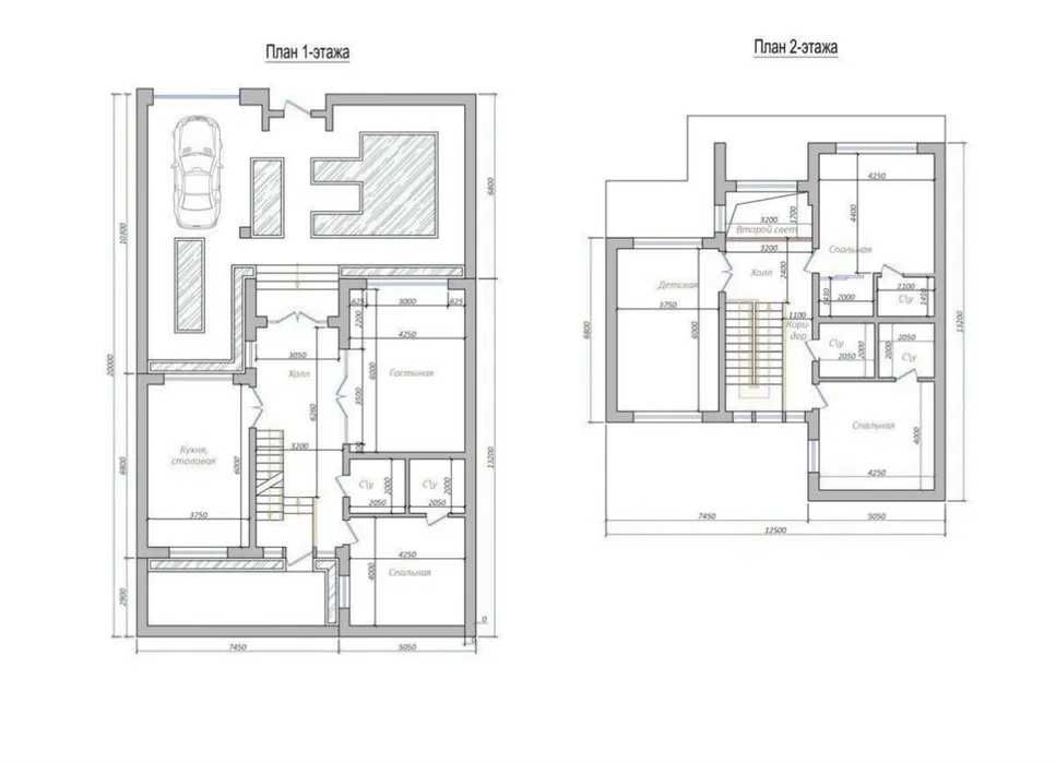
2.5 сотка
Фасад 12.5 метров
Торцевая
Построена 100% из кирпича
3 уровня
5 комнат, 4 санузла + подвал (под весь дом)
Все коммуникации проведены
Удобная локация; парк локомотив 1 км , Эко Чимган 2 км
Лимонария
ор-р перекресток сельхоз университета
2.5 сотка
Фасад 12.5 метров
Торцевая
Построена 100% из кирпича
3 уровня
5 комнат, 4 санузла + подвал (под весь дом)
Все коммуникации проведены
Удобная локация; парк локомотив 1 км , Эко Чимган 2 км
ID: 63175947
Sotuvchiga murojaat qilish
xxx xxx xxx

