Asosiy kontentga oʻtish
Chat
  • O'Z
  • РУ

Bildirishnoma

Hisobingiz

E‘lon berish
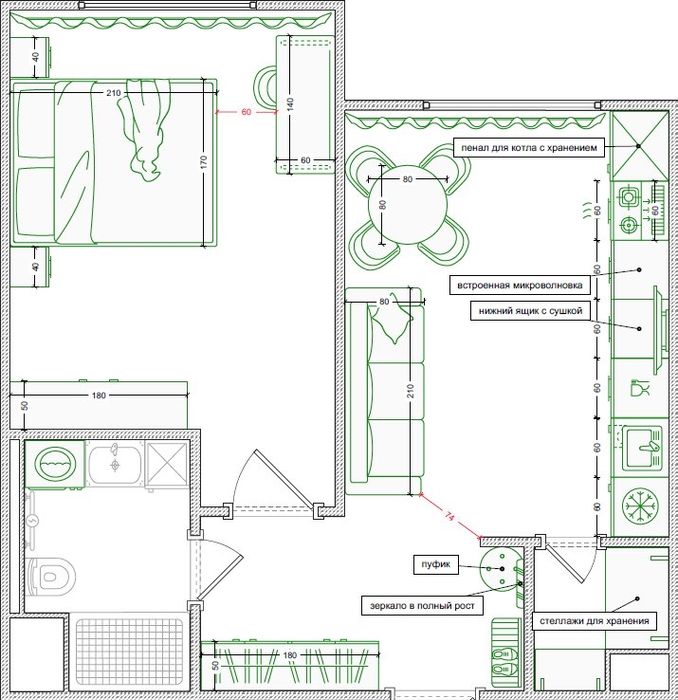
Квартиры в ЖК Sado(Bi Group) евродушка 41.5м2.
Квартиры в ЖК Sado(Bi Group) евродушка 41.5м2.
Квартиры в ЖК Sado(Bi Group) евродушка 41.5м2.
Reklama qilishKoʻtarish

Biznes

Turarjoy turi: Yangi qurilgan uylar

Xonalar soni: 2

Umumiy maydon: 41

Qavati: 4

Uy qavatliligi: 9

Qurilish turi: Blokli

Rejasi: Alohida ajratilgan

Sanuzel: Aralash

Mebelli: Yoʻq

Shiftining balandligi: 300

Taʼmiri: Taʼmir talab

Vositachilik haqqi: Yo’q

Tavsif

#МУлугбек #Паркентская 2/4/9
ЖК Sad'O (BI Group)
Общая площадь 41м2
Комнаты: студия
Состояние: межкомнатные перегородки
С/у: совмещенный
Балкон: лоджия
Кадастр: готов к переуступке
#2к

+99877 3665544
Цены
ID: 63064800

Sotuvchiga murojaat qilish

Dilmurod

OLXda oktabr, 2024 beri

Oxirgi marta bugun 11:25 da bo'lgan

xxx xxx xxx

Joylashtirildi 01/03/2026

Квартиры в ЖК Sado(Bi Group) евродушка 41.5м2.

65 000 у.е.

Foydalanuvchi

Joylashuv

Location

Toshkent, Yashnobod tumani

Toshkent viloyati

Телефонингиз учун бепул илова