Biznes
Turarjoy turi: Ikkilamchi bozor
Xonalar soni: 3
Umumiy maydon: 70
Qavati: 3
Uy qavatliligi: 4
Qurilish turi: Gʻishtli
Rejasi: Alohida ajratilgan
Mebelli: Yoʻq
Kvartirada bor: Internet, Telefon, Kabelli TV, Oshxona, Balkon
Yaqinida joylashgan: Kasalxona, poliklinika, Maktab, Bolalar maydonchasi, Bolalar bogʻchasi, Bekatlar, Park, yashil zona, Koʻngilochar muassasalar, Restoran, kafelar, turargoh, Supermarket, doʻkonlar
Taʼmiri: Taʼmir talab
Vositachilik haqqi: Yo’q
Tavsif
Ц4 3комнатная кирпич МожновИПОТЕКУ
Цена: 102000 y.e Срочно
подробная информация по телефону
+998951804080 Мохинур
TG-moxinur_rieltor
Юнусабадский Район Улица Абдуллы Кадыри Ориентир: Кафе Бухара
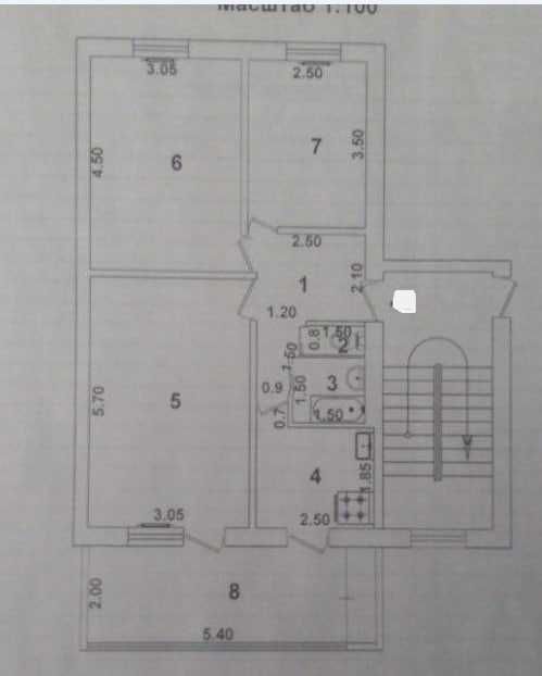
Комнат: 3 Этаж: 3 Этажность: 4 Общая Площадь: 70 квм²
Комнаты раздельные Санузел совмещенный Балкон 2*6
Не торец Ремонт: Требует
Цена: 102000 y.e Срочно
подробная информация по телефону
+998951804080 Мохинур
TG-moxinur_rieltor
Юнусабадский Район Улица Абдуллы Кадыри Ориентир: Кафе Бухара
Комнат: 3 Этаж: 3 Этажность: 4 Общая Площадь: 70 квм²
Комнаты раздельные Санузел совмещенный Балкон 2*6
Не торец Ремонт: Требует
ID: 61617472
Sotuvchiga murojaat qilish
xxx xxx xxx
