Biznes
Xonalar soni: 6
Umumiy maydon: 440 m²
Yashash maydoni: 330 m²
Joylashuvi: Shahar atrofida
Uy qavatliligi: 4
Shiftining balandligi: 320
Mebelli: Yoʻq
Uchastka maydoni: 180
Uy holati: Mualliflik loyihasi, Qora suvoq
Uy turi: Kottej
Qurilish turi: Gʻishtli
Suv: Markazlashgan suv taʼminoti
Elektr taʼminoti: Bor
Isitish: Gazda
Gaz: Magistral
Uy qurilgan/topshiriladigan yil: 2026 y'il topshiriladi
Uyda / Uchastkada bor: Ertoʻla, omborcha, Kanalizatsiya, Tomorqa, Qoʻriqchi
Yaqinida joylashgan: Kasalxona, poliklinika, Maktab, Bolalar maydonchasi, Bolalar bogʻchasi, Bekatlar, Park, yashil zona, Koʻngilochar muassasalar, Restoran, kafelar, turargoh, Supermarket, doʻkonlar
Vositachilik haqqi: Yo’q
Tavsif
super narx boshlangich 31500 dollar yani 30% bilan uy olishingiz mumkin
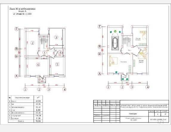
4 qavat 440 kv metr
0 chi qavat. 110 kv metr
1 chi qavat. holl, oshxona, zal, kattalar yotoqxonasi va sanuzel
2 chi qavat. holl keng kattalar yotoqxonasi + balkon, 2 ta bolalar xonasi, zal va sanuzellar
3 chi qavat. mansarda 110 kv metr
uy kadastrlari tayyor notariusga tayyor
bu narx 22 chi dekabrga qadar amal qiladi
manzil uchqaxramon postidan 5 km kirganda
4 qavat 440 kv metr
0 chi qavat. 110 kv metr
1 chi qavat. holl, oshxona, zal, kattalar yotoqxonasi va sanuzel
2 chi qavat. holl keng kattalar yotoqxonasi + balkon, 2 ta bolalar xonasi, zal va sanuzellar
3 chi qavat. mansarda 110 kv metr
uy kadastrlari tayyor notariusga tayyor
bu narx 22 chi dekabrga qadar amal qiladi
manzil uchqaxramon postidan 5 km kirganda
ID: 62726684
Sotuvchiga murojaat qilish
xxx xxx xxx

