Jismoniy shaxs
Koʻchmas mulk turi: Do’konlar/butiklar, Binoning bir qismi, Boshqa, Salonlar, Ofislar, Erkin maqsaddagi xona-joylar
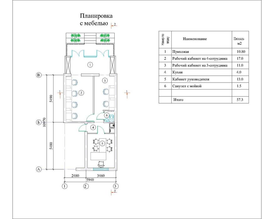
Umumiy maydon: 77.30 m²
Foydali maydoni: 77.30
Joylashuvi: Turar joy
Qavati: 1
Uy qavatliligi: 5
Shiftining balandligi: 2.65
Taʼmiri: Mualliflik loyihasi
Binoda bor: Internet, Yerto’la, Barcha kommunikatsiya aloqalari, Telefon, Konditsioner, Video kuzatuv, Kirish gruppasi
Parkovka: Bor
Vositachilik haqqi: Yo’q
Tavsif
Ижарага берилади: Тижорат жойи
Чилонзор, 25-квартал, Ибн Масъуд жоме масжиди рўпараси, Катта Қани круг, “Ватан” кинотеатри ёнида.
1-қават, 1-линия (йўл юзида)
Майдон: 57,3 м² (ярмини алоҳида ҳам ижарага олиш мумкин)
Фасад: 6 метр
Ертўла: 20,0 м²
4–6 та машинага шахсий парковка
Ремонт — 1 ой ичида тайёр бўлади.
Сдаётся коммерческое помещение
Чиланзар, 25-й квартал
(напротив мечети Ибн Масъуд, круг Катта Кани, рядом с кинотеатром «Ватан»)
1-й этаж, 1-я линия (фасад выходит на дорогу)
Площадь: 57,3 м² (можно арендовать половину отдельно)
Фасад: 6 метров
Подвал: 20 м²
Собственная парковка на 4–6 авто
Ремонт будет готов через 1 месяц
Чилонзор, 25-квартал, Ибн Масъуд жоме масжиди рўпараси, Катта Қани круг, “Ватан” кинотеатри ёнида.
1-қават, 1-линия (йўл юзида)
Майдон: 57,3 м² (ярмини алоҳида ҳам ижарага олиш мумкин)
Фасад: 6 метр
Ертўла: 20,0 м²
4–6 та машинага шахсий парковка
Ремонт — 1 ой ичида тайёр бўлади.
Сдаётся коммерческое помещение
Чиланзар, 25-й квартал
(напротив мечети Ибн Масъуд, круг Катта Кани, рядом с кинотеатром «Ватан»)
1-й этаж, 1-я линия (фасад выходит на дорогу)
Площадь: 57,3 м² (можно арендовать половину отдельно)
Фасад: 6 метров
Подвал: 20 м²
Собственная парковка на 4–6 авто
Ремонт будет готов через 1 месяц
ID: 61613741
Sotuvchiga murojaat qilish
xxx xxx xxx
Joylashtirildi 26/09/2025
коммерческое помещения / Тижорат учун жой
1 150 у.е.
Kelishilgan
Foydalanuvchi
Joylashuv
Toshkent, Uchtepa tumani
Toshkent viloyati