Asosiy kontentga oʻtish
Chat
  • O'Z
  • РУ

Bildirishnoma

E‘lon berish
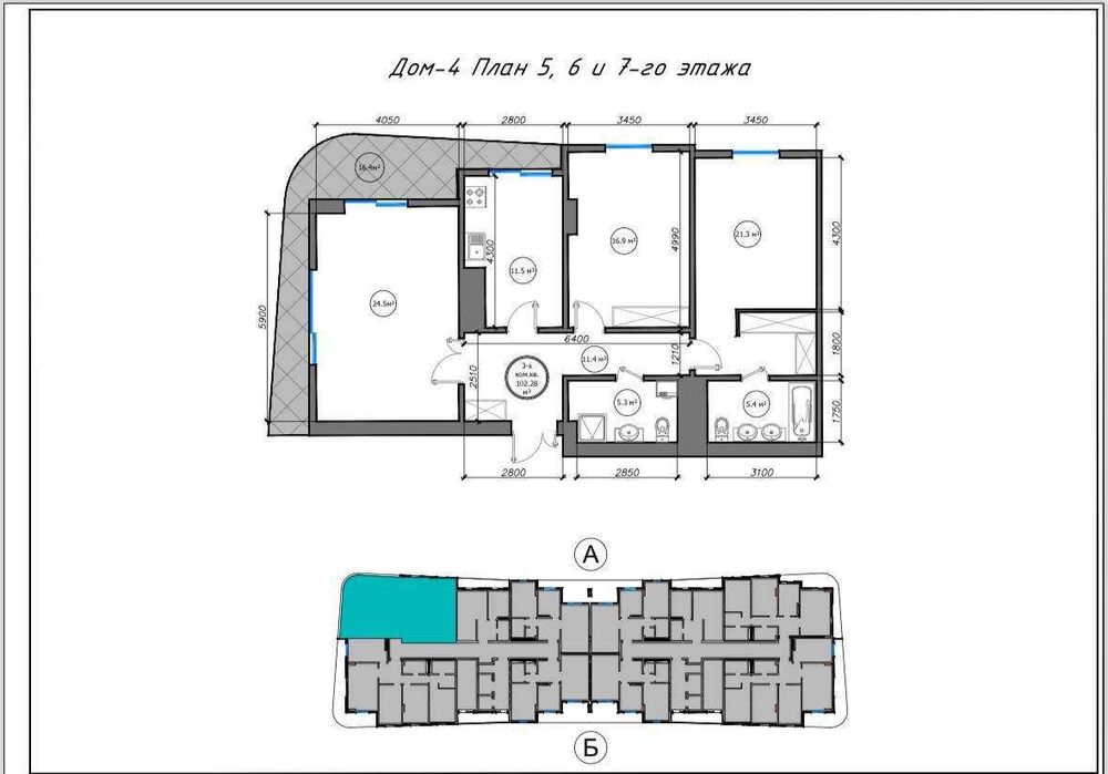
INFINITY 3/5/16 квартира 105м2 коробка А блок: ПРОДАЖА Ц1
INFINITY 3/5/16 квартира 105м2 коробка А блок: ПРОДАЖА Ц1
INFINITY 3/5/16 квартира 105м2 коробка А блок: ПРОДАЖА Ц1
Reklama qilishKoʻtarish

Biznes

Turarjoy turi: Yangi qurilgan uylar

Xonalar soni: 3

Umumiy maydon: 105

Qavati: 5

Uy qavatliligi: 16

Qurilish turi: Monolitli

Rejasi: Alohida ajratilgan

Sanuzel: 2 va undan koʻp sanuzel

Mebelli: Yoʻq

Kvartirada bor: Internet, Telefon, Oshxona, Balkon

Yaqinida joylashgan: Kasalxona, poliklinika, Bolalar maydonchasi, Bolalar bogʻchasi, Bekatlar, Park, yashil zona, Koʻngilochar muassasalar, Restoran, kafelar, turargoh, Supermarket, doʻkonlar, Maktab

Taʼmiri: Tozalashdan avvalgi pardoz

Vositachilik haqqi: Yo’q

Tavsif

INFINITY

#Яшнабад #3ком #новостройка

Ориентир: Ц-1, 145 школа, Садык Азимова

• Комнат: 3
• Этаж: 5 из 16
• Площадь: 105м²
• Состояние: White box
• Кадастр есть

Цена: 250 000 у.е. без торга

По вопросом звоните или пишите Саида +998952258855
ID: 62523142

Sotuvchiga murojaat qilish

Alpha Realty 95 225 88 55

OLXda oktabr, 2024 beri

Oxirgi marta kecha 20:08 da bo'lgan

xxx xxx xxx

Joylashtirildi 04/12/2025

INFINITY 3/5/16 квартира 105м2 коробка А блок: ПРОДАЖА Ц1

250 000 у.е.

Foydalanuvchi

Joylashuv

Location

Toshkent, Yashnobod tumani

Toshkent viloyati

Телефонингиз учун бепул илова