Biznes
Turarjoy turi: Yangi qurilgan uylar
Xonalar soni: 3
Umumiy maydon: 247
Qavati: 9
Uy qavatliligi: 9
Mebelli: Yoʻq
Yaqinida joylashgan: Kasalxona, poliklinika, Maktab, Bolalar maydonchasi, Bolalar bogʻchasi, Bekatlar, Park, yashil zona, Koʻngilochar muassasalar, Restoran, kafelar, turargoh, Supermarket, doʻkonlar
Vositachilik haqqi: Yo’q
Tavsif
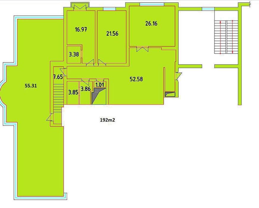
Продаётся 3-х комнатная квартира Габус
Ориентир: ул.Глинка, ГАИ, ул.Нукусская, Яккасарайский район
Комнат: 3
Этаж: 9
Этажность: 9
Площадь: 247 м2 (110 м2 терраса)
Половина террасы входит в кадастр
По кадастру 192 м2
Состояние: white box
Сантехника
Электрика
Стяжка
Теплый пол
Цена: 240.000 y.e./торг
+99890994466 Улугбек
Ориентир: ул.Глинка, ГАИ, ул.Нукусская, Яккасарайский район
Комнат: 3
Этаж: 9
Этажность: 9
Площадь: 247 м2 (110 м2 терраса)
Половина террасы входит в кадастр
По кадастру 192 м2
Состояние: white box
Сантехника
Электрика
Стяжка
Теплый пол
Цена: 240.000 y.e./торг
+99890994466 Улугбек
ID: 61993273
Sotuvchiga murojaat qilish
xxx xxx xxx

