Asosiy kontentga oʻtish
Chat
  • O'Z
  • РУ

Bildirishnoma

E‘lon berish
Чертежи, схемы 2D и 3D-моделирование в AutoCAD — быстро и качественно
Чертежи, схемы 2D и 3D-моделирование в AutoCAD — быстро и качественно
Чертежи, схемы 2D и 3D-моделирование в AutoCAD — быстро и качественно
Чертежи, схемы 2D и 3D-моделирование в AutoCAD — быстро и качественно
Чертежи, схемы 2D и 3D-моделирование в AutoCAD — быстро и качественно
Чертежи, схемы 2D и 3D-моделирование в AutoCAD — быстро и качественно
Reklama qilishKoʻtarish

Jismoniy shaxs

Tavsif

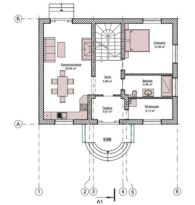
Выполняю чертежи любой сложности, создаю точные 2D-схемы и 3D-модели в AutoCAD для архитектурных, инженерных, строительных и дизайнерских проектов.

Услуги:

Разработка полного комплекта рабочих чертежей

Перевод эскизов и набросков в цифровой формат

3D-моделирование для визуализации и производства

Форматы выдачи: DWG, DXF, PDF и др.

Связь: +95)141-36-97
Звонки не принимаю писать в Telegram
ID: 60114895

Sotuvchiga murojaat qilish

Anna

OLXda may, 2025 beri

So'nggi faollik 23-aprel, 2026

Joylashtirildi 11/05/2026

Чертежи, схемы 2D и 3D-моделирование в AutoCAD — быстро и качественно

Foydalanuvchi

Joylashuv

Телефонингиз учун бепул илова