Biznes
Turarjoy turi: Yangi qurilgan uylar
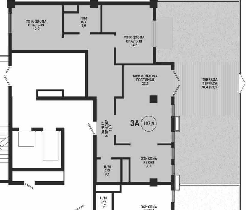
Xonalar soni: 3
Yashash maydoni: 106 m²
Umumiy maydon: 176
Qavati: 1
Uy qavatliligi: 12
Qurilish turi: Monolitli
Rejasi: Alohida ajratilgan
Mebelli: Yoʻq
Kvartirada bor: Balkon
Yaqinida joylashgan: Kasalxona, poliklinika, Maktab, Bolalar maydonchasi, Bolalar bogʻchasi, Bekatlar, Park, yashil zona, Koʻngilochar muassasalar, Restoran, kafelar, turargoh, Supermarket, doʻkonlar
Taʼmiri: Taʼmir talab
Vositachilik haqqi: Yo’q
Tavsif
Продаётся 3-комнатная квартира с участком во дворе | ЖК Koh Ota | Яшнабадский район
Адрес: г. Ташкент, Яшнабадский район
Ориентир: мечеть Кох Ота
Жилой комплекс: Koh Ota
Этаж: 1 из 12
Общая площадь квартиры: 106 м²
Площадь двора: 70 м² (в пользовании)
Комнат: 3 + кухня
Планировка: раздельная, сквозная
Состояние: свежий ремонт, квартира сухая и светлая
Особенности: отдельный выход во двор, тихая сторона, удобна для семьи с детьми или пожилыми
Преимущества:
Первый этаж с выходом в собственный огороженный двор
Современный дом с благоустроенной территорией
Сквозная планировка, хорошее освещение и вентиляция
Подходит как для жилья, так и под коммерческое использование (садик, салон, офис)
Рядом мечеть, магазин, школа, остановка
Цена: 180 000 долларов США
Контакт: +998 77 350 11 88 — Зафар
Документы в порядке. Кадастр есть. Торг возможен после осмотра.
Яшнобод тумани, Koh Ota новостройкасидан ҳовлили 3 хонали квартира сотилади
Манзил: Тошкент шаҳри, Яшнобод тумани
Ориентир: Кўҳ Ота масжиди
ЖК номи: Koh Ota
Қават: 1 / 12
Квартира майдони: 106 м²
Ҳовли майдони: 70 м² (шахсий фойдаланиш учун)
Хоналар: 3 та + ошхона
Режалаштириш: ажратилган, сквозной
Ҳолати: тоза, таъмирли, ёруғ ва қулай
Хусусиятлар: алоҳида ҳовли, болалар ва кекса инсонлар учун жуда мос
Афзалликлар:
1-қаватда жойлашган, шахсий ҳовлига чиқиш имкони бор
Янги қурилган бино, ҳовли ободонлаштирилган
Ёруғ ва сквозной квартира
Уй жой сифатида ҳам, тижорат учун ҳам мос (салон, офис, боғча)
Масжид, дўкон, мактаб ва бекатга яқин
Нарх: 180 000 АҚШ доллари
Телефон: +998 77 350 11 88 — Зафар
Ҳужжатлар тўлиқ. Кадастр бор. Кўришда келишиш мумкин.
Адрес: г. Ташкент, Яшнабадский район
Ориентир: мечеть Кох Ота
Жилой комплекс: Koh Ota
Этаж: 1 из 12
Общая площадь квартиры: 106 м²
Площадь двора: 70 м² (в пользовании)
Комнат: 3 + кухня
Планировка: раздельная, сквозная
Состояние: свежий ремонт, квартира сухая и светлая
Особенности: отдельный выход во двор, тихая сторона, удобна для семьи с детьми или пожилыми
Преимущества:
Первый этаж с выходом в собственный огороженный двор
Современный дом с благоустроенной территорией
Сквозная планировка, хорошее освещение и вентиляция
Подходит как для жилья, так и под коммерческое использование (садик, салон, офис)
Рядом мечеть, магазин, школа, остановка
Цена: 180 000 долларов США
Контакт: +998 77 350 11 88 — Зафар
Документы в порядке. Кадастр есть. Торг возможен после осмотра.
Яшнобод тумани, Koh Ota новостройкасидан ҳовлили 3 хонали квартира сотилади
Манзил: Тошкент шаҳри, Яшнобод тумани
Ориентир: Кўҳ Ота масжиди
ЖК номи: Koh Ota
Қават: 1 / 12
Квартира майдони: 106 м²
Ҳовли майдони: 70 м² (шахсий фойдаланиш учун)
Хоналар: 3 та + ошхона
Режалаштириш: ажратилган, сквозной
Ҳолати: тоза, таъмирли, ёруғ ва қулай
Хусусиятлар: алоҳида ҳовли, болалар ва кекса инсонлар учун жуда мос
Афзалликлар:
1-қаватда жойлашган, шахсий ҳовлига чиқиш имкони бор
Янги қурилган бино, ҳовли ободонлаштирилган
Ёруғ ва сквозной квартира
Уй жой сифатида ҳам, тижорат учун ҳам мос (салон, офис, боғча)
Масжид, дўкон, мактаб ва бекатга яқин
Нарх: 180 000 АҚШ доллари
Телефон: +998 77 350 11 88 — Зафар
Ҳужжатлар тўлиқ. Кадастр бор. Кўришда келишиш мумкин.
ID: 61353880
Sotuvchiga murojaat qilish
xxx xxx xxx