Asosiy kontentga oʻtish
Chat
  • O'Z
  • РУ

Bildirishnoma

E‘lon berish
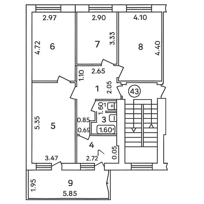
Ц-5 4х-комн/2/4 без ремонта
Reklama qilishKoʻtarish

Biznes

Turarjoy turi: Ikkilamchi bozor

Xonalar soni: 4

Umumiy maydon: 83

Qavati: 2

Uy qavatliligi: 4

Mebelli: Yoʻq

Taʼmiri: Taʼmir talab

Vositachilik haqqi: Yo’q

Tavsif

Ц -5. Юнусабадский район
4/2/4 Площадь: 83м2
Состояние: без ремонта

Цена - 110.000$

+998-97-757-47-00

#4х
ID: 62306128

Sotuvchiga murojaat qilish

Продавец

OLXda oktabr, 2019 beri

Oxirgi marta bugun 08:24 da bo'lgan

xxx xxx xxx

Joylashtirildi 18/11/2025

Ц-5 4х-комн/2/4 без ремонта

110 000 у.е.

Foydalanuvchi

Joylashuv

Location

Toshkent, Yakkasaroy tumani

Toshkent viloyati

Телефонингиз учун бепул илова