Biznes
Koʻchmas mulk turi: Do’konlar/butiklar, Salonlar, Restoranlar/kafelar/barlar, Ofislar
Umumiy maydon: 10 000 m²
Uy qavatliligi: 11
Binoda bor: Signalizatsiya, Yong’in signalizatsiyasi, Video kuzatuv
Parkovka: Bor
Vositachilik haqqi: Yo’q
Tavsif
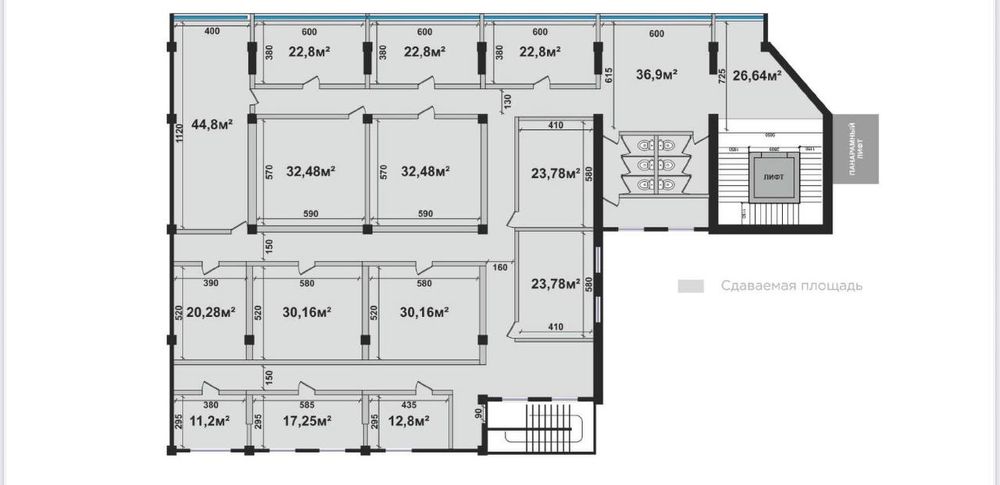
Янги бизнес-марказда замонавий офис хоналари таклиф этилади.
5-қаватдан 9-қаватгача бўлган қаватлардан фақат икки қават сотувда. Истаган майдон ва истаган квадратурани танлашингиз мумкин.
Афзалликлар:
• Район инфратузилмаси яхши ривожланган
• Қулай автопарковка — ҳамма учун жой бор
• Метро пиёда юриш масофасида
• Реjalash: open space ёки кабинет тизими
Қаватлар ҳолати:
1–3-қаватлар аллақачон берилган, 4-қаватдан юқори хоналар мавжуд.
• Сотув нархи: 31 250 000 сўм / 1 м²
Ҳақиқий клиентлар учун — ҳақиқий чегирмалар!
5-қаватдан 9-қаватгача бўлган қаватлардан фақат икки қават сотувда. Истаган майдон ва истаган квадратурани танлашингиз мумкин.
Афзалликлар:
• Район инфратузилмаси яхши ривожланган
• Қулай автопарковка — ҳамма учун жой бор
• Метро пиёда юриш масофасида
• Реjalash: open space ёки кабинет тизими
Қаватлар ҳолати:
1–3-қаватлар аллақачон берилган, 4-қаватдан юқори хоналар мавжуд.
• Сотув нархи: 31 250 000 сўм / 1 м²
Ҳақиқий клиентлар учун — ҳақиқий чегирмалар!
ID: 62142057
Sotuvchiga murojaat qilish
xxx xxx xxx
Joylashtirildi 22/01/2026
Бизнес центрда офис сотилади
31 250 000 so’m
Foydalanuvchi
Joylashuv
Mirobod
Toshkent viloyati