Asosiy kontentga oʻtish
Chat
  • O'Z
  • РУ

Bildirishnoma

E‘lon berish
Бизнес центр у метро|любая площадь|и Аренда и Продажа|
Бизнес центр у метро|любая площадь|и Аренда и Продажа|
Бизнес центр у метро|любая площадь|и Аренда и Продажа|
Бизнес центр у метро|любая площадь|и Аренда и Продажа|
Бизнес центр у метро|любая площадь|и Аренда и Продажа|
Reklama qilishKoʻtarish

Biznes

Koʻchmas mulk turi: KMF (Kichik me’moriy shakl), Salonlar, Do’konlar/butiklar, Erkin maqsaddagi xona-joylar, Restoranlar/kafelar/barlar, Binoning bir qismi, Ofislar, Omborxonalar, Boshqa, Alohida turgan binolar, Dam olish bazalari, Ishlab chiqarish uchun mo’ljallangan xona-joylar

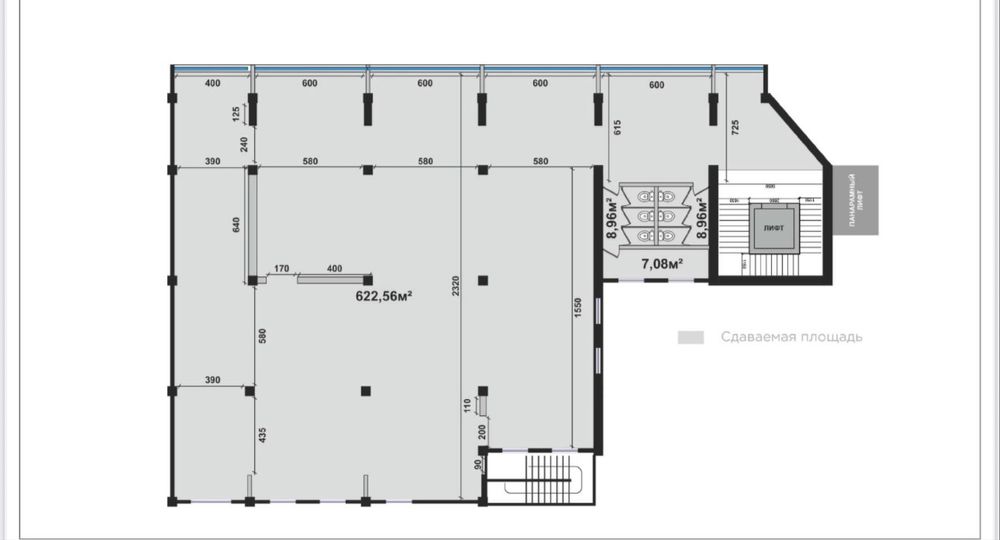
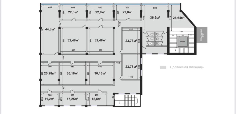
Umumiy maydon: 10 000 m²

Uy qavatliligi: 11

Taʼmiri: Tozalashdan avvalgi pardoz

Binoda bor: Barcha kommunikatsiya aloqalari

Parkovka: Bor

Vositachilik haqqi: Yo’q

Tavsif

В продаже — этажи с 5 по 9, можно выбрать любой вариант площади и планировки под ваши задачи.

Преимущества:
• Район с полноценной инфраструктурой
• Просторная парковка — свободные места всегда есть
• Метро в шаговой доступности
• Возможность спланировать пространство: open space или кабинетная система

Текущий статус:
Этажи 1–3 уже реализованы. В продаже — помещения с 4-го этажа и выше.

Стоимость: 2 500 у.е. за м²

Для покупателей, настроенных на сделку, предусмотрены реальные условия и скидки.
ID: 61900701

Sotuvchiga murojaat qilish

Investor

OLXda dekabr, 2023 beri

Oxirgi marta bugun 05:22 da bo'lgan

xxx xxx xxx

Joylashtirildi Bugunda 05:36

Бизнес центр у метро|любая площадь|и Аренда и Продажа|

2 500 у.е.

Kelishilgan

Foydalanuvchi

Joylashuv

Location

Toshkent, Yakkasaroy tumani

Toshkent viloyati

Телефонингиз учун бепул илова