Biznes
Koʻchmas mulk turi: Boshqa, Ofislar, Omborxonalar, Alohida turgan binolar, Ishlab chiqarish uchun mo’ljallangan xona-joylar, Erkin maqsaddagi xona-joylar
Umumiy maydon: 3 946 m²
Foydali maydoni: 3 936
Joylashuvi: Sanoat xududi
Uchastok: 32.50
Qavati: 1
Uy qavatliligi: 3
Shiftining balandligi: 6
Taʼmiri: Oʻrtacha
Binoda bor: Barcha kommunikatsiya aloqalari, Signalizatsiya, Konditsioner, Yong’in signalizatsiyasi, Video kuzatuv, Kecha-kunduz qo’riqlash
Parkovka: Bor
Vositachilik haqqi: Yo’q
Tavsif
Тип недвижимости: швейная фабрика, возможно перепрофилирование под склад производство
Наименование по кадастру: Швейная фабрика и вспомогательные здание.
Адрес: г. Ташкент, Бектемир р-н
Ориентир: Хокимият Бектемирского района.
Подъездные пути: авто, фура.
Ж/Д ветки: нет.
Общая площадь: 32,5 сотки (3250 кв.м.)
Размеры: 48 х 67,7 метров.
Длина фасада: 48 метров.
Ровный прямоугольник.
Площадь земли под строениями: 2143 кв.м.
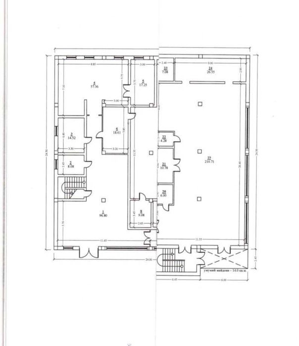
Общая площадь строений: 3 936 кв.м.
Количество основных строений: четыре.
Основные строения: Производственное, офисное здание, склад, красильный цех, котельная.
Вспомогательные строения: сторожка, летняя кухня, канализационный отстойник, навесы.
Уровень ремонта: хороший.
Коммуникации:
Газ: имеется, ГРП.
Электричество: имеется, ТП-1000, резервный дизельный генератор мощностью 150 КВт.
Вода: имеется, скважина, 2 штуки, диаметр трубы 320 мм.
Центральная канализация: имеется.
Отопление: Два котла производства Южная Корея “Navien”.
Охлаждение: Имеется, единая система, чилер.
Парогенератор: Имеется, производство Россия.
Система вытяжки и вентиляции воздуха: имеется.
Противопожарная система: имеется.
Количество этажей: два, подвала нет.
Общая площадь: 3452 кв.м.
В здание расположены: административный и дизайнерский офис, швейный, печатный, раскройный, вязальные цеха, склад полотна (вместимость 100 тон), комнаты отдыха, кухня, столовая (на 150 человек) и прочие вспомогательные помещения.
Количество входов в здание: четыре;
Объект недвижимости построен в 2016 году
Владелец: юридическое лицо.
Права на землю: Аренда.
Права на строения: Собственность.
Здание свободное.
Для более подробной информацией звоните.
Собственника недвижимости представляет:
ООО «GOLD REAL ESTATE»
лицензия гос. Ком. Конкуренции rl 001 №0041
Наш телеграмм канал:
Type of real estate: garment factory, can be converted into a warehouse production
Cadastral name: Garment factory and auxiliary buildings.
Address: Tashkent city, Bektemir district
Landmark: Khokimiyat of Bektemir district.
Access roads: auto, truck.
Railway lines: no.
Total area: 32.5 ares (3250 sq.m.)
Dimensions: 48 x 67.7 meters:
Facade length: 48 meters;
Even rectangle;
Area of land under buildings: 2143 sq.m.
Total area of buildings: 3,936 sq.m.
Number of main buildings: four.
Main buildings: Production, office building, warehouse, dye shop, boiler room.
Auxiliary buildings: gatehouse, summer kitchen, sewage septic tank, sheds.
Repair level: good
Utilities:
Gas: available, GRP.
Electricity: available, TP-1000, backup diesel generator with a capacity of 150 kW.
Water: available, well, 2 pieces, pipe diameter 320 mm.
Central sewerage: available.
Heating: Two boilers made in South Korea “Navien”.
Cooling: Available, single system, chiller.
Steam generator: Available, made in Russia.
Air exhaust and ventilation system: available.
Fire protection system: available.
Number of floors: two, no basement.
Total area: 3452 sq.m.;
The building houses: administrative and design office, sewing, printing, cutting, knitting workshops, fabric warehouse (capacity 100 tons), rest rooms, kitchen, dining room (for 150 people) and other auxiliary premises.
Number of entrances to the building: four;
The property was built in 2016
Owner: legal entity.
Land rights: Lease.
Building rights: Ownership.
The building is vacant.
For more information, call.
The owner of the property is represented by:
OOO "GOLD REAL ESTATE"
license state. Committee of Competition rl 001 No. 0041
Our telegram channel:
Наименование по кадастру: Швейная фабрика и вспомогательные здание.
Адрес: г. Ташкент, Бектемир р-н
Ориентир: Хокимият Бектемирского района.
Подъездные пути: авто, фура.
Ж/Д ветки: нет.
Общая площадь: 32,5 сотки (3250 кв.м.)
Размеры: 48 х 67,7 метров.
Длина фасада: 48 метров.
Ровный прямоугольник.
Площадь земли под строениями: 2143 кв.м.
Общая площадь строений: 3 936 кв.м.
Количество основных строений: четыре.
Основные строения: Производственное, офисное здание, склад, красильный цех, котельная.
Вспомогательные строения: сторожка, летняя кухня, канализационный отстойник, навесы.
Уровень ремонта: хороший.
Коммуникации:
Газ: имеется, ГРП.
Электричество: имеется, ТП-1000, резервный дизельный генератор мощностью 150 КВт.
Вода: имеется, скважина, 2 штуки, диаметр трубы 320 мм.
Центральная канализация: имеется.
Отопление: Два котла производства Южная Корея “Navien”.
Охлаждение: Имеется, единая система, чилер.
Парогенератор: Имеется, производство Россия.
Система вытяжки и вентиляции воздуха: имеется.
Противопожарная система: имеется.
Количество этажей: два, подвала нет.
Общая площадь: 3452 кв.м.
В здание расположены: административный и дизайнерский офис, швейный, печатный, раскройный, вязальные цеха, склад полотна (вместимость 100 тон), комнаты отдыха, кухня, столовая (на 150 человек) и прочие вспомогательные помещения.
Количество входов в здание: четыре;
Объект недвижимости построен в 2016 году
Владелец: юридическое лицо.
Права на землю: Аренда.
Права на строения: Собственность.
Здание свободное.
Для более подробной информацией звоните.
Собственника недвижимости представляет:
ООО «GOLD REAL ESTATE»
лицензия гос. Ком. Конкуренции rl 001 №0041
Наш телеграмм канал:
Type of real estate: garment factory, can be converted into a warehouse production
Cadastral name: Garment factory and auxiliary buildings.
Address: Tashkent city, Bektemir district
Landmark: Khokimiyat of Bektemir district.
Access roads: auto, truck.
Railway lines: no.
Total area: 32.5 ares (3250 sq.m.)
Dimensions: 48 x 67.7 meters:
Facade length: 48 meters;
Even rectangle;
Area of land under buildings: 2143 sq.m.
Total area of buildings: 3,936 sq.m.
Number of main buildings: four.
Main buildings: Production, office building, warehouse, dye shop, boiler room.
Auxiliary buildings: gatehouse, summer kitchen, sewage septic tank, sheds.
Repair level: good
Utilities:
Gas: available, GRP.
Electricity: available, TP-1000, backup diesel generator with a capacity of 150 kW.
Water: available, well, 2 pieces, pipe diameter 320 mm.
Central sewerage: available.
Heating: Two boilers made in South Korea “Navien”.
Cooling: Available, single system, chiller.
Steam generator: Available, made in Russia.
Air exhaust and ventilation system: available.
Fire protection system: available.
Number of floors: two, no basement.
Total area: 3452 sq.m.;
The building houses: administrative and design office, sewing, printing, cutting, knitting workshops, fabric warehouse (capacity 100 tons), rest rooms, kitchen, dining room (for 150 people) and other auxiliary premises.
Number of entrances to the building: four;
The property was built in 2016
Owner: legal entity.
Land rights: Lease.
Building rights: Ownership.
The building is vacant.
For more information, call.
The owner of the property is represented by:
OOO "GOLD REAL ESTATE"
license state. Committee of Competition rl 001 No. 0041
Our telegram channel:
ID: 60043784
Sotuvchiga murojaat qilish
xxx xxx xxx
