Biznes
Turarjoy turi: Ikkilamchi bozor
Xonalar soni: 1
Umumiy maydon: 42
Qavati: 5
Uy qavatliligi: 9
Mebelli: Yoʻq
Vositachilik haqqi: Yo’q
Tavsif
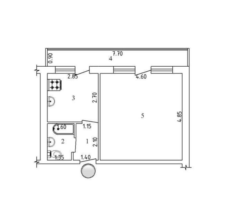
Продаётся квартира
Яшнабадский р-н, 1/5/9
Ориентир: Авиасозлар-2, Кадышева базар
Площадь: 42м2, без ремонта, зал 5х5
Яшнабадский р-н, 1/5/9
Ориентир: Авиасозлар-2, Кадышева базар
Площадь: 42м2, без ремонта, зал 5х5
ID: 61358413
Sotuvchiga murojaat qilish
xxx xxx xxx
