Biznes
Koʻchmas mulk turi: Do’konlar/butiklar, KMF (Kichik me’moriy shakl), Binoning bir qismi, Boshqa, Salonlar, Restoranlar/kafelar/barlar, Ofislar, Omborxonalar, Alohida turgan binolar, Dam olish bazalari, Ishlab chiqarish uchun mo’ljallangan xona-joylar, Erkin maqsaddagi xona-joylar
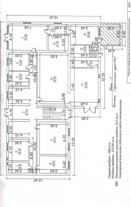
Umumiy maydon: 800 m²
Joylashuvi: Alohida bino
Uy qavatliligi: 2
Binoda bor: Internet, Barcha kommunikatsiya aloqalari, Telefon, Panjarali derazalar, Signalizatsiya, Kecha-kunduz qo’riqlash, Kirish gruppasi
Parkovka: Bor
Vositachilik haqqi: Bor
Tavsif
Аренда 800 м². Отдельное здание на Джаркурганской
2 этажа, 19 комнат, раздельная планировка
Ориентир — Масложир-комбинат
Под офис, клинику или любой бизнес
Отдельно стоящее коммерческое здание
Цена: 6 500 у.е./мес. (предоплата)
2 этажа, 19 комнат, раздельная планировка
Ориентир — Масложир-комбинат
Под офис, клинику или любой бизнес
Отдельно стоящее коммерческое здание
Цена: 6 500 у.е./мес. (предоплата)
ID: 61835775
Sotuvchiga murojaat qilish
xxx xxx xxx
